Details
Pine Walk, Carshalton Beeches, SM5
Guide price £1,400,000
(Under Offer)
Description
Positioned on the prestigious Pine Walk in Carshalton Beeches, this charming detached house presents a rare opportunity for those seeking a forever home. With four spacious reception rooms, five well-proportioned bedrooms, this property offers ample space for family living and entertaining.The house is brimming with potential, inviting you to personalise and optimise it to your taste. Its generous front garden not only enhances the property's curb appeal but also provides ample parking for residents and guests alike. The expansive garden, extending over 200ft is a true highlight, offering a serene outdoor space that overlooks the picturesque rolling hills of the Oaks Golf Club. This idyllic setting creates a rural atmosphere, perfect for relaxation and outdoor activities.Despite its tranquil surroundings, the property boasts excellent transport links, allowing you to reach central London in under 30 minutes. This combination of peaceful living and convenient access to the city makes it an ideal choice for commuters and families alike.
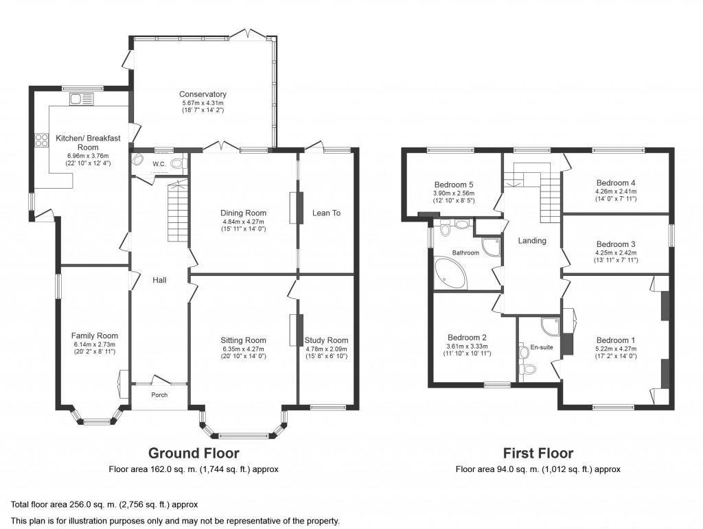
Accommodation
Double glass doors leading to enclosed entrance porch, tiled flooring, double glazed leaded light wooden front door to..
Spacious entrance hall
Oak flooring, covered radiator, dado rail, coved ceiling, under stairs storage cupboard.
Living room
UPVC double glazed leaded light bay window to front aspect, covered radiator, coved ceiling and ceiling rose, feature cast iron fireplace.
Dining room
Feature stained glass windows to side aspect, covered radiator, fireplace with decorative stone surround, decorative coved ceiling and ceiling rose, double wooden doors leading to conservatory.
Snug
UPVC double glazed leaded light bay window to front aspect window to side, covered radiator.
Study
UPVC double glazed leaded light window to front aspect, covered radiator, fitted storage cupboards.
Kitchen/breakfast room
Range of fitted wooden wall units with matching cupboards and drawers below, granite worktops with inlaid stainless steel sink and chrome mixer tap, integrated dishwasher, inlaid hob with extractor fan above and oven/grill at side, cupboard housing boiler, space for American style fridge/freezer, tiled flooring with underfloor heating, wall mounted heater, breakfast bar area double glazed leaded light windows to side and rear aspects and stable door leading to side.
Conservatory
UPVC double glazed windows to side and rear aspects and doors leading to garden, tiled flooring with under floor heating, wall lights.
Downstairs WC
Consisting of low-level flush WC, wash hand basin with chrome taps, tiled flooring, tiled walls, single panel radiator, obscure double glazed window to rear aspect.
Stairs to 1st floor landing
Large UPVC stained glass window to rear aspect with far reaching views across Oaks Park golf club, airing cupboard, coved ceiling, covered radiator.
Main bedroom
UPVC double glazed leaded light window to front aspect, covered radiator, fitted wardrobes.
Ensuite shower room
Consisting of tiled cubicle with thermostatic shower, wash hand basin with chrome taps and storage cupboards below, low-level push button flush WC, tiled walls, heated chrome towel rail, Amtico flooring, extractor fan.
Bedroom two
UPVC double glazed light window to front aspect, single panel radiator, loft access.
Bedroom three
UPVC double glazed leaded light window to side aspect, single panel radiator.
Bedroom four
UPVC double glazed leaded light window to rear aspect with far reaching views across Oaks Park golf club, double panel radiator.
Bedroom five
UPVC double glazed leaded light window to rear aspect with far reaching views across Oak Park golf club, single panel radiator.
Family bathroom
Spacious four piece suite comprising panel enclosed jacuzzi corner bath with chrome mixer tap, enclosed cubicle with steam jets and integrated music system, wash hand basin with chrome mixer tap and storage cupboard below, low-level pushbutton flush WC, tiled walls, extract fan, Amtico flooring, obscure UPVC double glazed window to side aspect, heated chrome towel rail.
Rear garden (Southerly aspect)
Extending to over 200ft
Large paved patio area with steps leading to spacious lawn area and mature shrubs and plants bordering, access to side storage unit.
Garage at side
Up/over door at front, fitted unit and worksurface with stainless steel sink and mixer tap, space and plumbing for washing machine and tumble dryer, access to rear garden.
Front
Spacious block paved driveway providing ample off street parking with shrubs and brick wall borders.
BUYER’S INFORMATION
Under UK law, estate agents are legally required to conduct Anti-Money Laundering (AML) checks on buyers and sellers to comply with regulations. These checks are mandatory, and estate agents can face penalties if they fail to perform them. We use the services of a third party to help conduct these checks thoroughly. As such there is a charge of £36 including vat, per person. Please note, we are unable to issue a memorandum of sale until these checks are complete
Viewing
Please contact us on 020 4537 3222 if you wish to arrange a viewing appointment for this property, or require further information.
Energy Performance Certificate
Click here to view the Energy Efficiency Rating and Environmental Impact Rating for this property.
Disclaimer
Watson Homes - SM6 endeavour to maintain accurate depictions of properties in Virtual Tours, Floor Plans and descriptions, however, these are intended only as a guide and purchasers must satisfy themselves by personal inspection.
Positioned on the prestigious Pine Walk in Carshalton Beeches, this charming detached house presents a rare opportunity for those seeking a forever home. With four spacious reception rooms, five well-proportioned bedrooms, this property offers ample space for family living and entertaining.The house is brimming with potential, inviting you to personalise and optimise it to your taste. Its generous front garden not only enhances the property's curb appeal but also provides ample parking for residents and guests alike. The expansive garden, extending over 200ft is a true highlight, offering a serene outdoor space that overlooks the picturesque rolling hills of the Oaks Golf Club. This idyllic setting creates a rural atmosphere, perfect for relaxation and outdoor activities.Despite its tranquil surroundings, the property boasts excellent transport links, allowing you to reach central London in under 30 minutes. This combination of peaceful living and convenient access to the city makes it an ideal choice for commuters and families alike.
Accommodation
Double glass doors leading to enclosed entrance porch, tiled flooring, double glazed leaded light wooden front door to..
Spacious entrance hall
Oak flooring, covered radiator, dado rail, coved ceiling, under stairs storage cupboard.
Living room
UPVC double glazed leaded light bay window to front aspect, covered radiator, coved ceiling and ceiling rose, feature cast iron fireplace.
Dining room
Feature stained glass windows to side aspect, covered radiator, fireplace with decorative stone surround, decorative coved ceiling and ceiling rose, double wooden doors leading to conservatory.
Snug
UPVC double glazed leaded light bay window to front aspect window to side, covered radiator.
Study
UPVC double glazed leaded light window to front aspect, covered radiator, fitted storage cupboards.
Kitchen/breakfast room
Range of fitted wooden wall units with matching cupboards and drawers below, granite worktops with inlaid stainless steel sink and chrome mixer tap, integrated dishwasher, inlaid hob with extractor fan above and oven/grill at side, cupboard housing boiler, space for American style fridge/freezer, tiled flooring with underfloor heating, wall mounted heater, breakfast bar area double glazed leaded light windows to side and rear aspects and stable door leading to side.
Conservatory
UPVC double glazed windows to side and rear aspects and doors leading to garden, tiled flooring with under floor heating, wall lights.
Downstairs WC
Consisting of low-level flush WC, wash hand basin with chrome taps, tiled flooring, tiled walls, single panel radiator, obscure double glazed window to rear aspect.
Stairs to 1st floor landing
Large UPVC stained glass window to rear aspect with far reaching views across Oaks Park golf club, airing cupboard, coved ceiling, covered radiator.
Main bedroom
UPVC double glazed leaded light window to front aspect, covered radiator, fitted wardrobes.
Ensuite shower room
Consisting of tiled cubicle with thermostatic shower, wash hand basin with chrome taps and storage cupboards below, low-level push button flush WC, tiled walls, heated chrome towel rail, Amtico flooring, extractor fan.
Bedroom two
UPVC double glazed light window to front aspect, single panel radiator, loft access.
Bedroom three
UPVC double glazed leaded light window to side aspect, single panel radiator.
Bedroom four
UPVC double glazed leaded light window to rear aspect with far reaching views across Oaks Park golf club, double panel radiator.
Bedroom five
UPVC double glazed leaded light window to rear aspect with far reaching views across Oak Park golf club, single panel radiator.
Family bathroom
Spacious four piece suite comprising panel enclosed jacuzzi corner bath with chrome mixer tap, enclosed cubicle with steam jets and integrated music system, wash hand basin with chrome mixer tap and storage cupboard below, low-level pushbutton flush WC, tiled walls, extract fan, Amtico flooring, obscure UPVC double glazed window to side aspect, heated chrome towel rail.
Rear garden (Southerly aspect)
Extending to over 200ft
Large paved patio area with steps leading to spacious lawn area and mature shrubs and plants bordering, access to side storage unit.
Garage at side
Up/over door at front, fitted unit and worksurface with stainless steel sink and mixer tap, space and plumbing for washing machine and tumble dryer, access to rear garden.
Front
Spacious block paved driveway providing ample off street parking with shrubs and brick wall borders.
BUYER’S INFORMATION
Under UK law, estate agents are legally required to conduct Anti-Money Laundering (AML) checks on buyers and sellers to comply with regulations. These checks are mandatory, and estate agents can face penalties if they fail to perform them. We use the services of a third party to help conduct these checks thoroughly. As such there is a charge of £36 including vat, per person. Please note, we are unable to issue a memorandum of sale until these checks are complete
Viewing
Please contact us on 020 4537 3222 if you wish to arrange a viewing appointment for this property, or require further information.
Energy Performance Certificate
Click here to view the Energy Efficiency Rating and Environmental Impact Rating for this property.
Disclaimer
Watson Homes - SM6 endeavour to maintain accurate depictions of properties in Virtual Tours, Floor Plans and descriptions, however, these are intended only as a guide and purchasers must satisfy themselves by personal inspection.
Share
Request aValuation
Thinking of selling or letting your property? Request a free property valuation

