Details
Wellfield Gardens, Carshalton, SM5
Guide price £1,250,000
Description
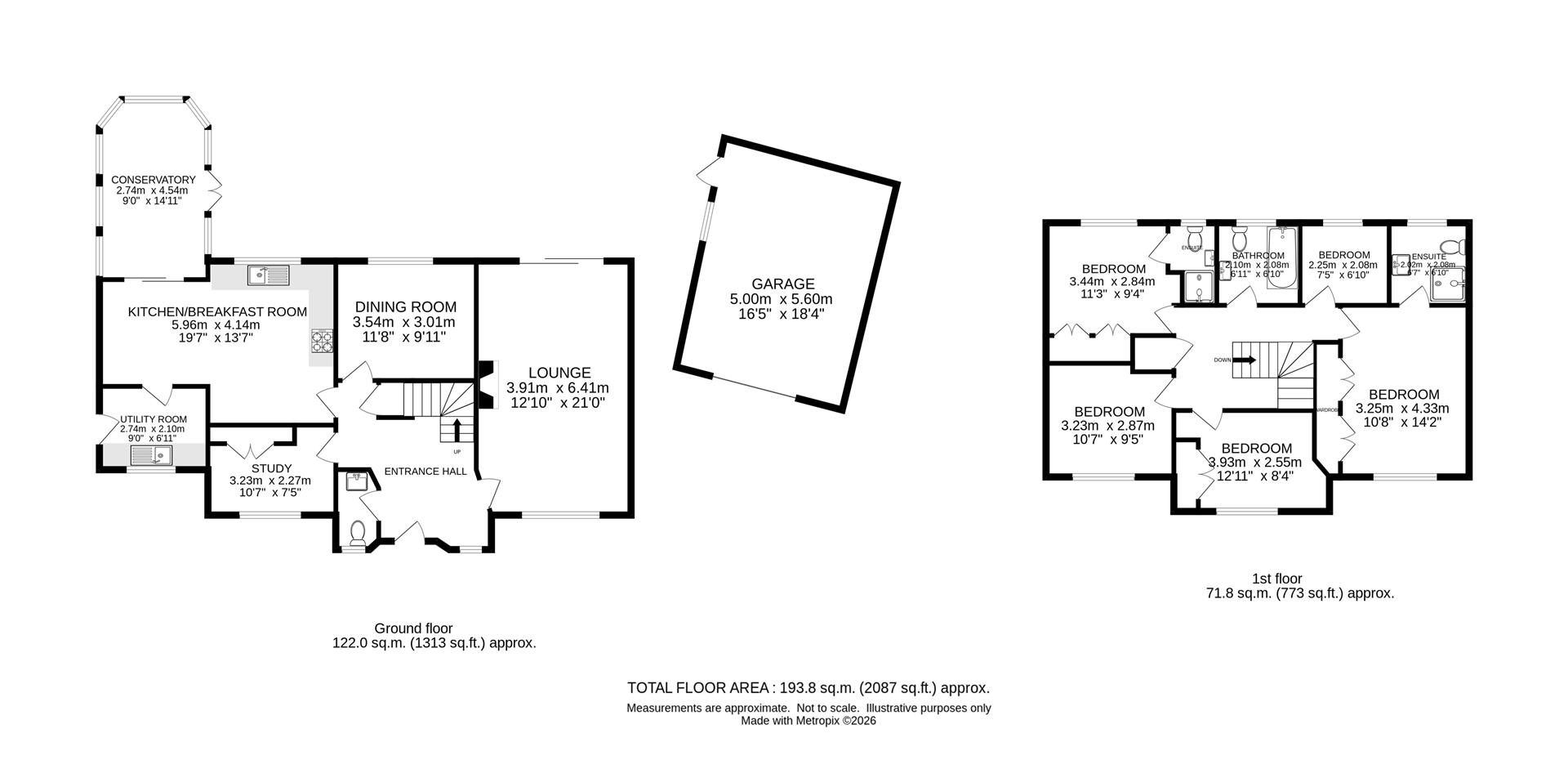
Nestled in the peaceful cul -de -sac of Wellfield Gardens, Carshalton Beeches, this impressive detached house on a large plot offers a perfect blend of modern living and spacious comfort. With a generous area of 2,087 square feet, this property boasts five well-proportioned bedrooms, making it an ideal family home. Upon entering, you are greeted by three inviting reception rooms, providing ample space for relaxation and entertainment. The open plan kitchen and breakfast room is a highlight, designed for both functionality and style, perfect for family gatherings or casual dining. The addition of a utility room enhances convenience, ensuring that daily chores are easily managed.Natural light floods the conservatory, creating a serene space to enjoy the garden views throughout the seasons. The property also features three bathrooms, ensuring that morning routines run smoothly for the whole family.For those with vehicles, the property offers parking for up to three cars, along with a detached garage for additional storage or workshop space. Situated in a modern and sought-after development, this home is not only practical but also benefits from a friendly community atmosphere.In summary, this comfortable and stylish family home in Wellfield Gardens is a rare find, combining spacious living areas, modern amenities, and a prime location. The house is ideally situated for easy access to mainline stations as well as bus routes and a variety of amenities including shops and cafes. Additionally, the property offers convenient proximity to several sought-after schools. Viewing is highly recommended for this exceptional residence.
Accommodation
Obscure glazed wooden front door to..
Spacious entrance hall
Double glazed leaded light window to front aspect, wall mounted alarm panel, coved ceiling, wall mounted thermostat, under stairs storage cupboard, double panel radiator, Karndean flooring.
Lounge
Double glazed leaded light window to front aspect, double panelled radiators, gas fireplace with marble surround, coved ceiling, double glazed sliding doors to rear aspect.
Dining room
Double glazed window to rear aspect, single panel radiator, coved ceiling.
Kitchen/breakfast room
Range of fitted wall units with matching cupboards and drawers below, roll top work surfaces with inlaid sink and chrome mixer tab, inlaid gas hob with extractor fan above and oven/grill at side, integrated dishwasher, space for American style fridge/freezer, double panel radiator, tiled flooring, tiled splash back, double glazed window to rear aspect, double glazed sliding doors leading to conservatory.
Utility room
Fitted storage cupboards with roll top worksurface and inlaid stainless steel sink, space and plumbing for washing machine and tumble dryer, space for tall standing fridge/freezer, wall mounted “Worcester” boiler, double glazed leaded light window to front aspect and door to side.
Conservatory
Double glazed windows to side and rear aspects and double doors leading to patio, wall mounted heaters, wood laminate flooring.
Study
Double glazed leaded light window to front aspect, fitted storage cupboards and desk area, single panel radiator, coved ceiling.
Downstairs WC
Consisting of low-level flush WC, wash hand basin with chrome mixer tap, obscure double glazed light window to front aspect.
Stairs to 1st floor landing
Cupboard housing hot water tank, coved ceiling, ladder access to boarded loft, single panel radiator.
Bedroom one
Double glazed leaded light window to front aspect, single panel radiator, built-in wardrobes, coved ceiling.
En suite shower room
Consisting of tiled cubicle with thermostatic shower and hand attachment, wash hand basin with chrome mixer tap and storage cupboard below, low-level push button flush WC, heated chrome towel rail, Amtico flooring, tiled walls.
Bedroom two
Double glazed window to rear aspect, single panel radiator, built in wardrobes, coved ceiling.
Ensuite shower room
Consisting of tiled cubicle with thermostatic shower and hand attachment, floating wash hand basin with chrome mixer tap, low-level push button flush WC, heated chrome towel rail, obscure double glazed window to rear aspect.
Bedroom three
Double glazed leaded light window to front aspect, coved ceiling, single panel radiator.
Bedroom four
Double glazed leaded light window to front aspect, fitted wardrobe, single panel radiator, coved ceiling.
Bedroom five
Double glazed window to rear aspect, single panel radiator, coved ceiling.
Bathroom
Comprising panel enclosed bath with chrome mixer tap and shower attachment, pedestal wash hand basin with chrome mixer tap, low-level flush WC, double pedal radiator, Amtico flooring, tiled walls, shaver point, obscure double glazed window to rear aspect.
Rear garden (South Easterly aspect)
Large paved patio area leading to gated side access and storage shed, mainly laid to lawn with an abundance of plants and flowerbeds bordering, fence enclosed, outside tap, further side garden with ideal seating area and gated side access directly on to woodland.
Detached garage
Electric up/over door with partially boarded loft.
Front
Large driveway providing ample off street parking.
BUYER’S INFORMATION
Under UK law, estate agents are legally required to conduct Anti-Money Laundering (AML) checks on buyers and sellers to comply with regulations. These checks are mandatory, and estate agents can face penalties if they fail to perform them. We use the services of a third party to help conduct these checks thoroughly. As such there is a charge of £36 including vat, per person. Please note, we are unable to issue a memorandum of sale until these checks are complete.
Viewing
Please contact us on 020 4537 3222 if you wish to arrange a viewing appointment for this property, or require further information.
Energy Performance Certificate
Click here to view the Energy Efficiency Rating and Environmental Impact Rating for this property.
Disclaimer
Watson Homes - SM6 endeavour to maintain accurate depictions of properties in Virtual Tours, Floor Plans and descriptions, however, these are intended only as a guide and purchasers must satisfy themselves by personal inspection.
Nestled in the peaceful cul -de -sac of Wellfield Gardens, Carshalton Beeches, this impressive detached house on a large plot offers a perfect blend of modern living and spacious comfort. With a generous area of 2,087 square feet, this property boasts five well-proportioned bedrooms, making it an ideal family home. Upon entering, you are greeted by three inviting reception rooms, providing ample space for relaxation and entertainment. The open plan kitchen and breakfast room is a highlight, designed for both functionality and style, perfect for family gatherings or casual dining. The addition of a utility room enhances convenience, ensuring that daily chores are easily managed.Natural light floods the conservatory, creating a serene space to enjoy the garden views throughout the seasons. The property also features three bathrooms, ensuring that morning routines run smoothly for the whole family.For those with vehicles, the property offers parking for up to three cars, along with a detached garage for additional storage or workshop space. Situated in a modern and sought-after development, this home is not only practical but also benefits from a friendly community atmosphere.In summary, this comfortable and stylish family home in Wellfield Gardens is a rare find, combining spacious living areas, modern amenities, and a prime location. The house is ideally situated for easy access to mainline stations as well as bus routes and a variety of amenities including shops and cafes. Additionally, the property offers convenient proximity to several sought-after schools. Viewing is highly recommended for this exceptional residence.
Accommodation
Obscure glazed wooden front door to..
Spacious entrance hall
Double glazed leaded light window to front aspect, wall mounted alarm panel, coved ceiling, wall mounted thermostat, under stairs storage cupboard, double panel radiator, Karndean flooring.
Lounge
Double glazed leaded light window to front aspect, double panelled radiators, gas fireplace with marble surround, coved ceiling, double glazed sliding doors to rear aspect.
Dining room
Double glazed window to rear aspect, single panel radiator, coved ceiling.
Kitchen/breakfast room
Range of fitted wall units with matching cupboards and drawers below, roll top work surfaces with inlaid sink and chrome mixer tab, inlaid gas hob with extractor fan above and oven/grill at side, integrated dishwasher, space for American style fridge/freezer, double panel radiator, tiled flooring, tiled splash back, double glazed window to rear aspect, double glazed sliding doors leading to conservatory.
Utility room
Fitted storage cupboards with roll top worksurface and inlaid stainless steel sink, space and plumbing for washing machine and tumble dryer, space for tall standing fridge/freezer, wall mounted “Worcester” boiler, double glazed leaded light window to front aspect and door to side.
Conservatory
Double glazed windows to side and rear aspects and double doors leading to patio, wall mounted heaters, wood laminate flooring.
Study
Double glazed leaded light window to front aspect, fitted storage cupboards and desk area, single panel radiator, coved ceiling.
Downstairs WC
Consisting of low-level flush WC, wash hand basin with chrome mixer tap, obscure double glazed light window to front aspect.
Stairs to 1st floor landing
Cupboard housing hot water tank, coved ceiling, ladder access to boarded loft, single panel radiator.
Bedroom one
Double glazed leaded light window to front aspect, single panel radiator, built-in wardrobes, coved ceiling.
En suite shower room
Consisting of tiled cubicle with thermostatic shower and hand attachment, wash hand basin with chrome mixer tap and storage cupboard below, low-level push button flush WC, heated chrome towel rail, Amtico flooring, tiled walls.
Bedroom two
Double glazed window to rear aspect, single panel radiator, built in wardrobes, coved ceiling.
Ensuite shower room
Consisting of tiled cubicle with thermostatic shower and hand attachment, floating wash hand basin with chrome mixer tap, low-level push button flush WC, heated chrome towel rail, obscure double glazed window to rear aspect.
Bedroom three
Double glazed leaded light window to front aspect, coved ceiling, single panel radiator.
Bedroom four
Double glazed leaded light window to front aspect, fitted wardrobe, single panel radiator, coved ceiling.
Bedroom five
Double glazed window to rear aspect, single panel radiator, coved ceiling.
Bathroom
Comprising panel enclosed bath with chrome mixer tap and shower attachment, pedestal wash hand basin with chrome mixer tap, low-level flush WC, double pedal radiator, Amtico flooring, tiled walls, shaver point, obscure double glazed window to rear aspect.
Rear garden (South Easterly aspect)
Large paved patio area leading to gated side access and storage shed, mainly laid to lawn with an abundance of plants and flowerbeds bordering, fence enclosed, outside tap, further side garden with ideal seating area and gated side access directly on to woodland.
Detached garage
Electric up/over door with partially boarded loft.
Front
Large driveway providing ample off street parking.
BUYER’S INFORMATION
Under UK law, estate agents are legally required to conduct Anti-Money Laundering (AML) checks on buyers and sellers to comply with regulations. These checks are mandatory, and estate agents can face penalties if they fail to perform them. We use the services of a third party to help conduct these checks thoroughly. As such there is a charge of £36 including vat, per person. Please note, we are unable to issue a memorandum of sale until these checks are complete.
Viewing
Please contact us on 020 4537 3222 if you wish to arrange a viewing appointment for this property, or require further information.
Energy Performance Certificate
Click here to view the Energy Efficiency Rating and Environmental Impact Rating for this property.
Disclaimer
Watson Homes - SM6 endeavour to maintain accurate depictions of properties in Virtual Tours, Floor Plans and descriptions, however, these are intended only as a guide and purchasers must satisfy themselves by personal inspection.
Share
Request aValuation
Thinking of selling or letting your property? Request a free property valuation

