Details
West Way, Carshalton, SM5
Guide price £1,400,000
(Under Offer)
Description
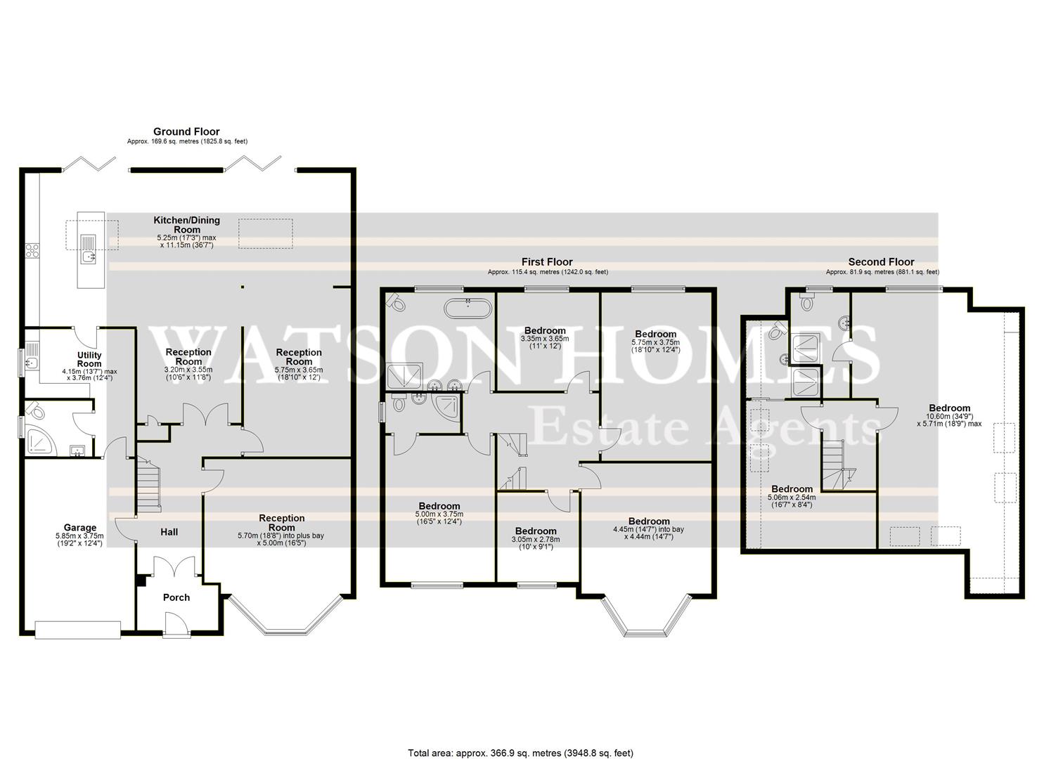
Watson Homes are delighted to offer this magnificent seven bedroom, five bathroom detached family home which must be seen! Situated in a prime location in Carshalton Beeches, this property offers a wealth of accommodation spanning over three floors, offering versatile accommodation with a total square footage of nearly 4000 sq ft.Located within easy reach of a selection of excellent primary and secondary schools. The location is also ideal for both Sutton, Carshalton and Carshalton Beeches mainline stations with excellent service into London which are within walking distance making it ideal for commuters. There are also several convenient bus stops in the surrounding area.
Accommodation
Obscure double glazed composite front door to..
Entrance vestibule
Fitted storage cabinet and shoe rack, tiled flooring with underfloor heating, double wooden doors to..
Spacious entrance hall
Tiled flooring with underfloor heating, under stairs storage cupboard, wall mounted digital thermostat.
Lounge
UPVC double glazed bay window to front aspect, fireplace with solid surround and wooden mantle piece, tiled flooring with underfloor heating.
Family area
Tiled flooring with underfloor heating, open plan to..
Spacious kitchen/diner/breakfast room
Range of fitted gloss wall units with matching cupboards and drawers below, granite worktops and island with breakfast bar, fitted storage cupboards, inlaid “Franke” sink with chrome mixer tap and hose attachment, space for large gas range cooker with “Bosch” oven/grill and warming tray at side, integrated dishwasher, integrated fridge and freezer, two feature sky lanterns, tiled flooring with underfloor heating, access to large storage cupboard, double glazed bifold doors to rear aspect.
Utility room
Range fitted gloss wall units with matching cupboards below, space and plumbing for washing machine, tumble dryer and dishwasher, space for American style fridge/freezer, quartz worktop with inlaid stainless steel sink and chrome mixer tap with hose attachment, tiled splashback, tiled flooring with underfloor heating, UPVC double glazed window to side aspect.
Downstairs shower room
Luxury modern suite consisting of tiled cubicle with thermostatic shower, low-level bidet with chrome mixer tap, low-level pushbutton flush WC, wash hand basin with mixer tap and storage cupboards below, part tiled walls, tiled flooring with underfloor heating, UPVC double glazed window to side aspect.
Integral garage
Hard standing providing further offstreet parking if desired, wall mounted boiler and mega flow system, UPVC double glazed windows to side aspect, electric roller shutter door at front.
Stairs to 1st floor landing
Solid wood flooring, single panel radiator.
Bedroom three
UPVC double glazed window to front aspect, solid wood flooring, single panel radiator.
Ensuite shower room
Modern suite consisting of tiled cubicle with thermostatic shower, wash hand basin with chrome mixer tap, low-level pushbutton flush WC, tiled walls, tiled flooring, heated towel rail, extractor fan, obscure UPVC double glazed window to side aspect.
Bedroom four
UPVC double glazed bay window to front aspect, solid flooring, double panel radiator.
Bedroom five
UPVC double glazed window to rear aspect, solid wood flooring, single panel radiator.
Bedroom six
UPVC double glazed window to front aspect, single panel radiator, solid wood flooring.
Bedroom seven
UPVC double glazed window to rear aspect, solid wood flooring, single panel radiator.
Family Bathroom
Spacious suite comprising, freestanding bathtub with chrome mixer tap and shower attachment, tiled cubicle with thermostatic shower, his and hers wash hand basin with chrome mixer taps and storage cupboards below, low-level push button flush WC, part tiled walls, tiled flooring, two heated towel rails, extractor fan.
Stairs to 2nd floor landing
Feature skylight.
Main bedroom
Triple aspect room with four Velux windows to front and side aspects and UPVC double window to rear, solid wood flooring, three single panel radiators, access to eaves storage, separate lounge area.
Ensuite shower room
Consisting of tiled cubicle with thermostatic shower and jet wash with hand attachment, wash hand basin with chrome mixer tap and storage cupboards below, low-level push button flush WC, part tiled walls, tiled flooring, extractor fan, heated chrome towel rail, shaver point.
Bedroom two
Two Velux windows to side aspect, solid flooring, single panel radiator, access to eaves storage, fitted wardrobe and shelving.
Ensuite shower room
Consisting of tiled cubicle with thermostatic shower and hand attachment, wash hand basin with chrome mixer tap, low-level push button flush WC, part tiled walls, tiled flooring, heated chrome towel rail, access to eaves storage.
Rear garden
Large “Raj Green” porcelain patio area with steps leading to lawn section and mature shrubs bordering, fence enclosed, side access with storage shed, outside tap and power supply.
Front
Large hardstanding carriage driveway with lawn section at front, outside tap.
BUYER’S INFORMATION
Under UK law, estate agents are legally required to conduct Anti-Money Laundering (AML) checks on buyers and sellers to comply with regulations. These checks are mandatory, and estate agents can face penalties if they fail to perform them. We use the services of a third party to help conduct these checks thoroughly. As such there is a charge of £36 including vat, per person. Please note, we are unable to issue a memorandum of sale until these checks are complete
Viewing
Please contact us on 020 4537 3222 if you wish to arrange a viewing appointment for this property, or require further information.
Energy Performance Certificate
Click here to view the Energy Efficiency Rating and Environmental Impact Rating for this property.
Disclaimer
Watson Homes - SM6 endeavour to maintain accurate depictions of properties in Virtual Tours, Floor Plans and descriptions, however, these are intended only as a guide and purchasers must satisfy themselves by personal inspection.
Watson Homes are delighted to offer this magnificent seven bedroom, five bathroom detached family home which must be seen! Situated in a prime location in Carshalton Beeches, this property offers a wealth of accommodation spanning over three floors, offering versatile accommodation with a total square footage of nearly 4000 sq ft.Located within easy reach of a selection of excellent primary and secondary schools. The location is also ideal for both Sutton, Carshalton and Carshalton Beeches mainline stations with excellent service into London which are within walking distance making it ideal for commuters. There are also several convenient bus stops in the surrounding area.
Accommodation
Obscure double glazed composite front door to..
Entrance vestibule
Fitted storage cabinet and shoe rack, tiled flooring with underfloor heating, double wooden doors to..
Spacious entrance hall
Tiled flooring with underfloor heating, under stairs storage cupboard, wall mounted digital thermostat.
Lounge
UPVC double glazed bay window to front aspect, fireplace with solid surround and wooden mantle piece, tiled flooring with underfloor heating.
Family area
Tiled flooring with underfloor heating, open plan to..
Spacious kitchen/diner/breakfast room
Range of fitted gloss wall units with matching cupboards and drawers below, granite worktops and island with breakfast bar, fitted storage cupboards, inlaid “Franke” sink with chrome mixer tap and hose attachment, space for large gas range cooker with “Bosch” oven/grill and warming tray at side, integrated dishwasher, integrated fridge and freezer, two feature sky lanterns, tiled flooring with underfloor heating, access to large storage cupboard, double glazed bifold doors to rear aspect.
Utility room
Range fitted gloss wall units with matching cupboards below, space and plumbing for washing machine, tumble dryer and dishwasher, space for American style fridge/freezer, quartz worktop with inlaid stainless steel sink and chrome mixer tap with hose attachment, tiled splashback, tiled flooring with underfloor heating, UPVC double glazed window to side aspect.
Downstairs shower room
Luxury modern suite consisting of tiled cubicle with thermostatic shower, low-level bidet with chrome mixer tap, low-level pushbutton flush WC, wash hand basin with mixer tap and storage cupboards below, part tiled walls, tiled flooring with underfloor heating, UPVC double glazed window to side aspect.
Integral garage
Hard standing providing further offstreet parking if desired, wall mounted boiler and mega flow system, UPVC double glazed windows to side aspect, electric roller shutter door at front.
Stairs to 1st floor landing
Solid wood flooring, single panel radiator.
Bedroom three
UPVC double glazed window to front aspect, solid wood flooring, single panel radiator.
Ensuite shower room
Modern suite consisting of tiled cubicle with thermostatic shower, wash hand basin with chrome mixer tap, low-level pushbutton flush WC, tiled walls, tiled flooring, heated towel rail, extractor fan, obscure UPVC double glazed window to side aspect.
Bedroom four
UPVC double glazed bay window to front aspect, solid flooring, double panel radiator.
Bedroom five
UPVC double glazed window to rear aspect, solid wood flooring, single panel radiator.
Bedroom six
UPVC double glazed window to front aspect, single panel radiator, solid wood flooring.
Bedroom seven
UPVC double glazed window to rear aspect, solid wood flooring, single panel radiator.
Family Bathroom
Spacious suite comprising, freestanding bathtub with chrome mixer tap and shower attachment, tiled cubicle with thermostatic shower, his and hers wash hand basin with chrome mixer taps and storage cupboards below, low-level push button flush WC, part tiled walls, tiled flooring, two heated towel rails, extractor fan.
Stairs to 2nd floor landing
Feature skylight.
Main bedroom
Triple aspect room with four Velux windows to front and side aspects and UPVC double window to rear, solid wood flooring, three single panel radiators, access to eaves storage, separate lounge area.
Ensuite shower room
Consisting of tiled cubicle with thermostatic shower and jet wash with hand attachment, wash hand basin with chrome mixer tap and storage cupboards below, low-level push button flush WC, part tiled walls, tiled flooring, extractor fan, heated chrome towel rail, shaver point.
Bedroom two
Two Velux windows to side aspect, solid flooring, single panel radiator, access to eaves storage, fitted wardrobe and shelving.
Ensuite shower room
Consisting of tiled cubicle with thermostatic shower and hand attachment, wash hand basin with chrome mixer tap, low-level push button flush WC, part tiled walls, tiled flooring, heated chrome towel rail, access to eaves storage.
Rear garden
Large “Raj Green” porcelain patio area with steps leading to lawn section and mature shrubs bordering, fence enclosed, side access with storage shed, outside tap and power supply.
Front
Large hardstanding carriage driveway with lawn section at front, outside tap.
BUYER’S INFORMATION
Under UK law, estate agents are legally required to conduct Anti-Money Laundering (AML) checks on buyers and sellers to comply with regulations. These checks are mandatory, and estate agents can face penalties if they fail to perform them. We use the services of a third party to help conduct these checks thoroughly. As such there is a charge of £36 including vat, per person. Please note, we are unable to issue a memorandum of sale until these checks are complete
Viewing
Please contact us on 020 4537 3222 if you wish to arrange a viewing appointment for this property, or require further information.
Energy Performance Certificate
Click here to view the Energy Efficiency Rating and Environmental Impact Rating for this property.
Disclaimer
Watson Homes - SM6 endeavour to maintain accurate depictions of properties in Virtual Tours, Floor Plans and descriptions, however, these are intended only as a guide and purchasers must satisfy themselves by personal inspection.
Share
Request aValuation
Thinking of selling or letting your property? Request a free property valuation

