Details
Woodcote Grove Road, Coulsdon, CR5
Guide price £700,000
(Under Offer)
Description
Watson Homes are delighted to offer this spacious, four bedroom detached family home. The property offers excellent scope to extend s.t.p.p, a large rear garden, ample off street parking and NO ONWARD CHAIN.Convenience is key, with Coulsdon town centre and Coulsdon South station just a short stroll away, providing regular 30-minute connections to London Bridge and Victoria. The home’s elevated position affords panoramic views and immediate access to scenic countryside walks in sought-after Happy Valley. For commuters, the M23 and M25 are easily accessible by car, while families will appreciate the proximity to several highly regarded schools.
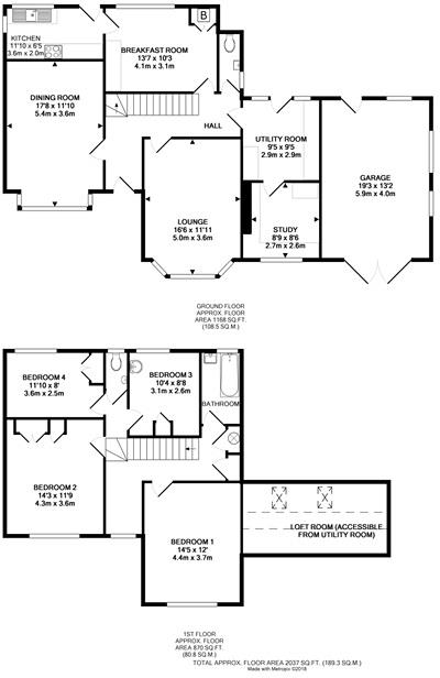
This delightful double fronted house was extended about 25 years ago to provide a spacious utility room, study and large garage and there is a useful loft room above with two Velux windows access from the utility room and there is huge potential to build above this area to provide a large master bedroom suite, subject to planning permission.
The original accommodation comprises a lounge and a dining room which are both generous sizes and a breakfast room with door leading into the kitchen which enjoys direct access to the garden. Upstairs, there are four good sized bedrooms of which three benefit from built-in wardrobes and these are served by a family bathroom and a separate W.C.
Outside, the beautifully tended rear garden extends to approximately 60' x 50' primarily laid to lawn with attractive borders well stocked with a variety of flowers and shrubs. There is a patio area and side access to the front where you will find driveway parking and a large garage.
THE LOCATION Education
Coulsdon and Old Coulsdon are well known for good choice of reputable schools. These include Chipstead Valley, Smitham, St. Aidans Catholic, Woodcote Primary and High School, Keston, Old Coulsdon C of E and the Oasis Academy. Coulsdon College provides further education.
Sports & Leisure
The open spaces of Farthing Downs and several recreations grounds and parks are in the area together with facilities at golf courses at Woodcote Park and Coulsdon Manor. There are also cricket, tennis and bowls clubs to be found locally. There are also plenty of opportunities to relax and socialise in the many local restaurants and cafes.
Transport
Coulsdon South station provides rail services to London Bridge (from 21 minutes), London Victoria (from 28 minutes) and Gatwick (from 20 minutes) whilst Coulsdon Town and Woodmansterne will get you to London from 35 to 45 minutes. Numerous bus services provide transport to all the surrounding areas and the M25/M23 intersection at Hooley is approximately 3-4 miles away providing easy access to Gatwick and Heathrow Airports.
BUYER’S INFORMATION
Under UK law, estate agents are legally required to conduct Anti-Money Laundering (AML) checks on buyers and sellers to comply with regulations. These checks are mandatory, and estate agents can face penalties if they fail to perform them. We use the services of a third party to help conduct these checks thoroughly. As such there is a charge of £36 including vat, per person. Please note, we are unable to issue a memorandum of sale until these checks are complete
Viewing
Please contact us on 020 4537 3222 if you wish to arrange a viewing appointment for this property, or require further information.
Energy Performance Certificate
Click here to view the Energy Efficiency Rating and Environmental Impact Rating for this property.
Disclaimer
Watson Homes - SM6 endeavour to maintain accurate depictions of properties in Virtual Tours, Floor Plans and descriptions, however, these are intended only as a guide and purchasers must satisfy themselves by personal inspection.
Watson Homes are delighted to offer this spacious, four bedroom detached family home. The property offers excellent scope to extend s.t.p.p, a large rear garden, ample off street parking and NO ONWARD CHAIN.Convenience is key, with Coulsdon town centre and Coulsdon South station just a short stroll away, providing regular 30-minute connections to London Bridge and Victoria. The home’s elevated position affords panoramic views and immediate access to scenic countryside walks in sought-after Happy Valley. For commuters, the M23 and M25 are easily accessible by car, while families will appreciate the proximity to several highly regarded schools.
This delightful double fronted house was extended about 25 years ago to provide a spacious utility room, study and large garage and there is a useful loft room above with two Velux windows access from the utility room and there is huge potential to build above this area to provide a large master bedroom suite, subject to planning permission.
The original accommodation comprises a lounge and a dining room which are both generous sizes and a breakfast room with door leading into the kitchen which enjoys direct access to the garden. Upstairs, there are four good sized bedrooms of which three benefit from built-in wardrobes and these are served by a family bathroom and a separate W.C.
Outside, the beautifully tended rear garden extends to approximately 60' x 50' primarily laid to lawn with attractive borders well stocked with a variety of flowers and shrubs. There is a patio area and side access to the front where you will find driveway parking and a large garage.
THE LOCATION Education
Coulsdon and Old Coulsdon are well known for good choice of reputable schools. These include Chipstead Valley, Smitham, St. Aidans Catholic, Woodcote Primary and High School, Keston, Old Coulsdon C of E and the Oasis Academy. Coulsdon College provides further education.
Sports & Leisure
The open spaces of Farthing Downs and several recreations grounds and parks are in the area together with facilities at golf courses at Woodcote Park and Coulsdon Manor. There are also cricket, tennis and bowls clubs to be found locally. There are also plenty of opportunities to relax and socialise in the many local restaurants and cafes.
Transport
Coulsdon South station provides rail services to London Bridge (from 21 minutes), London Victoria (from 28 minutes) and Gatwick (from 20 minutes) whilst Coulsdon Town and Woodmansterne will get you to London from 35 to 45 minutes. Numerous bus services provide transport to all the surrounding areas and the M25/M23 intersection at Hooley is approximately 3-4 miles away providing easy access to Gatwick and Heathrow Airports.
BUYER’S INFORMATION
Under UK law, estate agents are legally required to conduct Anti-Money Laundering (AML) checks on buyers and sellers to comply with regulations. These checks are mandatory, and estate agents can face penalties if they fail to perform them. We use the services of a third party to help conduct these checks thoroughly. As such there is a charge of £36 including vat, per person. Please note, we are unable to issue a memorandum of sale until these checks are complete
Viewing
Please contact us on 020 4537 3222 if you wish to arrange a viewing appointment for this property, or require further information.
Energy Performance Certificate
Click here to view the Energy Efficiency Rating and Environmental Impact Rating for this property.
Disclaimer
Watson Homes - SM6 endeavour to maintain accurate depictions of properties in Virtual Tours, Floor Plans and descriptions, however, these are intended only as a guide and purchasers must satisfy themselves by personal inspection.
Share
Request aValuation
Thinking of selling or letting your property? Request a free property valuation

