Details
Seymour Avenue, Morden, SM4
Guide price £575,000
Description
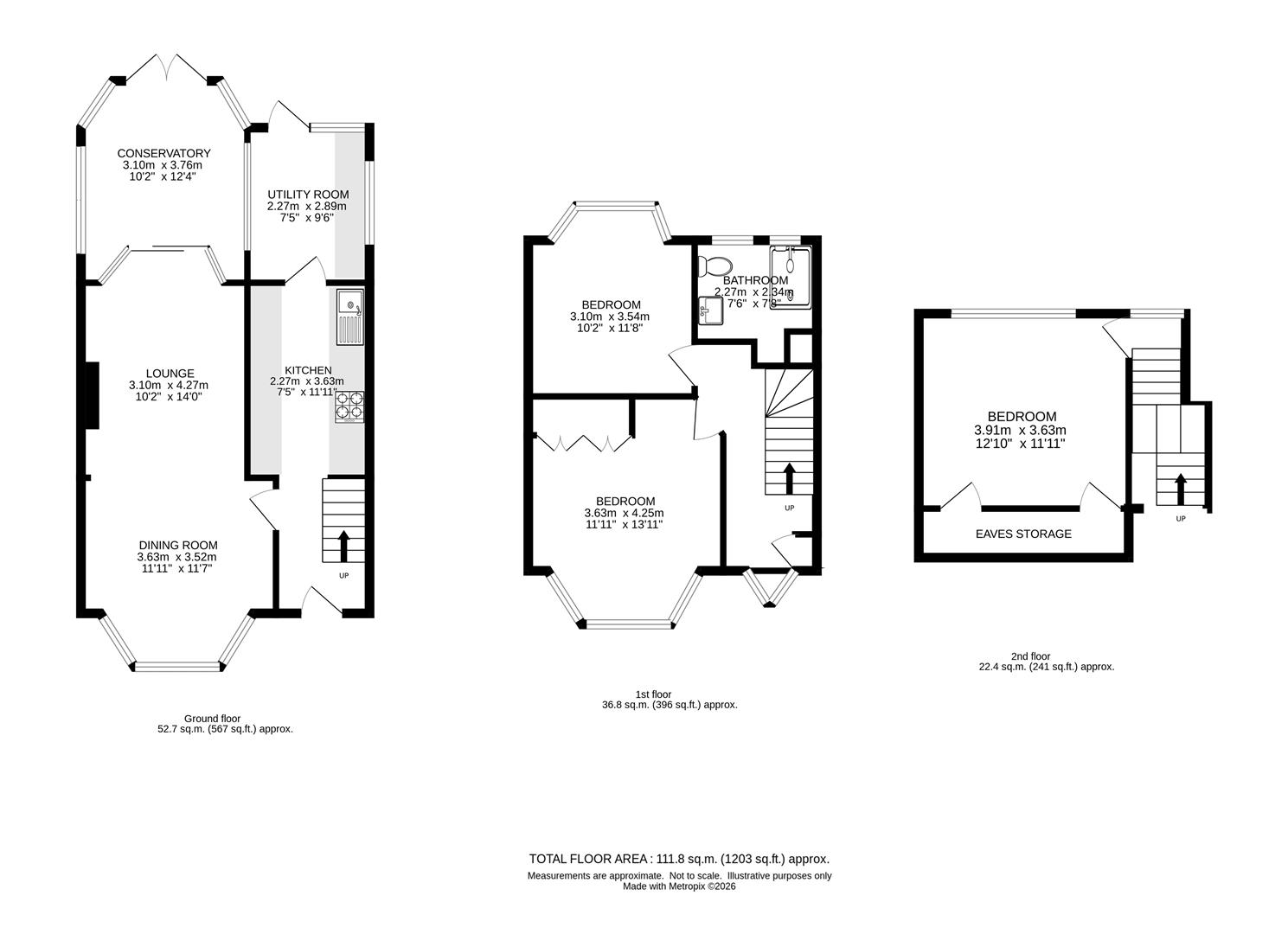
Watson Homes are delighted to offer this deceptively spacious THREE DOUBLE BEDROOM extended family home. The property benefits from a conservatory, a utility area, a detached double garage, a pretty rear garden, off street parking and no onward chain.Seymour Avenue is perfectly located for a family with 13 good and outstanding local schools all within a mile of this wonderful home. St Helier national rail station is 0.9 miles away with direct connections to London Blackfriars in 42 minutes with links to Wimbledon (District Line) and Tooting (Northern Line). Morden Underground station is 1.9 miles away which offers the Northern line connection into London. There are a number of shops and businesses nearby to enjoy with Morden & Raynes Park a short journey away.
Accommodation
Covered entrance
Obscure UPVC double glazed front door to…
Entrance hall
Obscure UPVC double glazed window to front aspect, double panel radiator, under stairs storage cupboard.
Through lounge
UPVC double glazed leaded light bay window to front aspect, two double panel radiators, coved ceiling, sliding door doors leading to…
Conservatory
UPVC double glazed windows to side and rear aspects and double doors leading to garden, tiled flooring.
Kitchen
Range of fitted wall units with matching cupboards and drawers below, roll top work surfaces with inlaid stainless steel sink and chrome mixer tap, inlaid induction hob with extractor fan above and oven/grill below, space for tall standing fridge/freezer, space and plumbing for dishwasher, wood laminate flooring, tiled splash back.
Utility area
UPVC double glazed windows to side and rear aspects and door leading to garden, fitted storage cupboards, space and plumbing for washing machine, wood laminate flooring.
Stairs to 1st floor landing
UPVC double glazed leaded light oriel Bay window to front aspect.
Bedroom one
UPVC double glazed leaded light bay window to front aspect, single panel radiator, fitted wardrobes.
Bedroom two
UPVC double glazed bay window to rear aspect, single panel radiator, fitted wardrobe.
Bathroom
Modern suite consisting of tiled walk in cubicle with thermostatic shower and hand attachment, wash hand basin with chrome mixer tap and storage cupboard below, low-level push button flush WC, LVT flooring, heated chrome towel rail, fitted storage cupboard, obscure UPVC double glazed windows to rear aspect.
Stairs to 2nd floor
UPVC double glazed window to rear aspect.
Bedroom three
UPVC double glazed window to rear aspect, double panel radiator, eaves storage.
Rear garden – Westerley aspect
Approximately 60ft
Paved patio area with footpath leading to rear, mainly laid to lawn with mature shrubs and flowerbeds bordering, outside tap, fence enclosed, gated rear access.
Detached double garage
Up/Over door at side, secure gated access via rear alleyway.
Front
Block paved driveway providing off street parking.
BUYER’S INFORMATION
Under UK law, estate agents are legally required to conduct Anti-Money Laundering (AML) checks on buyers and sellers to comply with regulations. These checks are mandatory, and estate agents can face penalties if they fail to perform them. We use the services of a third party to help conduct these checks thoroughly. As such there is a charge of £36 including vat, per person. Please note, we are unable to issue a memorandum of sale until these checks are complete
Viewing
Please contact us on 020 3196 1686 if you wish to arrange a viewing appointment for this property, or require further information.
Energy Performance Certificate
Click here to view the Energy Efficiency Rating and Environmental Impact Rating for this property.
Disclaimer
Watson Homes - SM6 endeavour to maintain accurate depictions of properties in Virtual Tours, Floor Plans and descriptions, however, these are intended only as a guide and purchasers must satisfy themselves by personal inspection.
Watson Homes are delighted to offer this deceptively spacious THREE DOUBLE BEDROOM extended family home. The property benefits from a conservatory, a utility area, a detached double garage, a pretty rear garden, off street parking and no onward chain.Seymour Avenue is perfectly located for a family with 13 good and outstanding local schools all within a mile of this wonderful home. St Helier national rail station is 0.9 miles away with direct connections to London Blackfriars in 42 minutes with links to Wimbledon (District Line) and Tooting (Northern Line). Morden Underground station is 1.9 miles away which offers the Northern line connection into London. There are a number of shops and businesses nearby to enjoy with Morden & Raynes Park a short journey away.
Accommodation
Covered entrance
Obscure UPVC double glazed front door to…
Entrance hall
Obscure UPVC double glazed window to front aspect, double panel radiator, under stairs storage cupboard.
Through lounge
UPVC double glazed leaded light bay window to front aspect, two double panel radiators, coved ceiling, sliding door doors leading to…
Conservatory
UPVC double glazed windows to side and rear aspects and double doors leading to garden, tiled flooring.
Kitchen
Range of fitted wall units with matching cupboards and drawers below, roll top work surfaces with inlaid stainless steel sink and chrome mixer tap, inlaid induction hob with extractor fan above and oven/grill below, space for tall standing fridge/freezer, space and plumbing for dishwasher, wood laminate flooring, tiled splash back.
Utility area
UPVC double glazed windows to side and rear aspects and door leading to garden, fitted storage cupboards, space and plumbing for washing machine, wood laminate flooring.
Stairs to 1st floor landing
UPVC double glazed leaded light oriel Bay window to front aspect.
Bedroom one
UPVC double glazed leaded light bay window to front aspect, single panel radiator, fitted wardrobes.
Bedroom two
UPVC double glazed bay window to rear aspect, single panel radiator, fitted wardrobe.
Bathroom
Modern suite consisting of tiled walk in cubicle with thermostatic shower and hand attachment, wash hand basin with chrome mixer tap and storage cupboard below, low-level push button flush WC, LVT flooring, heated chrome towel rail, fitted storage cupboard, obscure UPVC double glazed windows to rear aspect.
Stairs to 2nd floor
UPVC double glazed window to rear aspect.
Bedroom three
UPVC double glazed window to rear aspect, double panel radiator, eaves storage.
Rear garden – Westerley aspect
Approximately 60ft
Paved patio area with footpath leading to rear, mainly laid to lawn with mature shrubs and flowerbeds bordering, outside tap, fence enclosed, gated rear access.
Detached double garage
Up/Over door at side, secure gated access via rear alleyway.
Front
Block paved driveway providing off street parking.
BUYER’S INFORMATION
Under UK law, estate agents are legally required to conduct Anti-Money Laundering (AML) checks on buyers and sellers to comply with regulations. These checks are mandatory, and estate agents can face penalties if they fail to perform them. We use the services of a third party to help conduct these checks thoroughly. As such there is a charge of £36 including vat, per person. Please note, we are unable to issue a memorandum of sale until these checks are complete
Viewing
Please contact us on 020 3196 1686 if you wish to arrange a viewing appointment for this property, or require further information.
Energy Performance Certificate
Click here to view the Energy Efficiency Rating and Environmental Impact Rating for this property.
Disclaimer
Watson Homes - SM6 endeavour to maintain accurate depictions of properties in Virtual Tours, Floor Plans and descriptions, however, these are intended only as a guide and purchasers must satisfy themselves by personal inspection.
Share
Request aValuation
Thinking of selling or letting your property? Request a free property valuation

