Details
Kayemoor Road, South Sutton, SM2
Offers over £850,000
(Under Offer)
Description
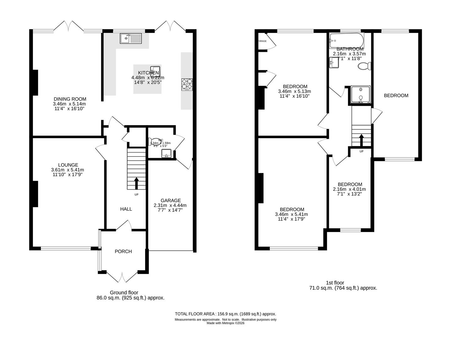
CHAIN FREEWatson Homes is delighted to present this exquisite four-bedroom semi-detached family home located on the desirable Kayemoor Road, nestled between Carshalton Beeches and South Sutton. Spanning an impressive 1,689 square feet, this property has been tastefully styled, offering a perfect blend of comfort and elegance.Upon entering, you will find two spacious reception rooms, providing ample space for both relaxation and entertaining. The separate lounge and dining room create a welcoming atmosphere, while the superbly extended kitchen serves as the heart of the home, ideal for family gatherings and culinary adventures. The four generously sized bedrooms ensure that there is plenty of room for family and guests alike. The property also boasts two well-appointed bathrooms, catering to the needs of a busy household. Outside, the large rear garden offers a tranquil retreat, perfect for outdoor activities or simply enjoying the fresh air. Additionally, the property provides parking for up to three vehicles, a valuable feature in this sought-after area.One of the standout benefits of this home is that it comes with no onward chain, making the buying process more straightforward and stress-free. Furthermore, the excellent transport links and proximity to highly regarded primary and secondary schools make this location particularly appealing for families.This stunning property is not to be missed. Please do not hesitate to call us now to secure your viewing and discover the charm of this wonderful family home.
Accommodation
Leaded light double wooden doors to..
Large entrance porch
Tiled effect flooring
Part glazed wooden front door to..
Spacious entrance hall
Obscure double glazed leaded light window to front aspect, dado rail, picture rail, cover ceiling, under stairs storage cupboard, covered radiator.
Lounge
Double glazed bay window to front aspect, double panel radiator, cover ceiling, fireplace with wooden mantle piece.
Dining room
Double glazed French doors leading to rear garden, double panel radiator.
Kitchen/breakfast room
Range of fitted wall units with matching cupboards and drawers below, roll top work surfaces with inlaid stainless steel sink and chrome mixer tap, inlaid gas hob with oven/grill below, Integrated fridge/freezer, integrated dishwasher, washing machine and tumble dryer, tiled flooring, breakfast bar and island with inlaid stainless steel sink and chrome mixer tap, double glazed window and patio doors to rear aspect , access to garage.
Downstairs WC
Consisting of low-level push button flush WC, wash hand basin with chrome taps.
Stairs to first floor landing
Loft access, dado rail, picture rail, coved ceiling.
Main bedroom
Double glazed window to front aspect, double panel radiator.
Bedroom two
Double glazed window to rear aspect, double panel radiator, fitted wardrobes, picture rail.
Bedroom three
Double glazed windows to front and rear aspects, two double panel radiators.
Bedroom four
Double glazed window to front aspect, single panel radiator, coved ceiling, wood laminate flooring.
Bathroom
Spacious four piece suite consisting of tiled walk in cubicle with thermostatic shower and hand attachment, panel enclosed bath with Victorian style chrome mixer tap and hand attachment, pedestal wash hand basin with chrome taps, low-level flush WC, heated chrome towel rail, tiled flooring, obscure double glazed window to rear aspect, double panel radiator.
Rear garden (Easterly aspect) – approximately 70ft Large paved patio with decking area at side, steps leading to lawn section with mature shrubs and flowers bordering, outside tap, fence enclosed, gated side access.
Garage at side
Front
Paved driveway providing off street parking with flowerbed at side.
BUYER’S INFORMATION
Under UK law, estate agents are legally required to conduct Anti-Money Laundering (AML) checks on buyers and sellers to comply with regulations. These checks are mandatory, and estate agents can face penalties if they fail to perform them. We use the services of a third party to help conduct these checks thoroughly. As such there is a charge of £36 including vat, per person. Please note, we are unable to issue a memorandum of sale until these checks are complete.
Viewing
Please contact us on 020 4537 3222 if you wish to arrange a viewing appointment for this property, or require further information.
Energy Performance Certificate
Click here to view the Energy Efficiency Rating and Environmental Impact Rating for this property.
Disclaimer
Watson Homes - SM6 endeavour to maintain accurate depictions of properties in Virtual Tours, Floor Plans and descriptions, however, these are intended only as a guide and purchasers must satisfy themselves by personal inspection.
CHAIN FREEWatson Homes is delighted to present this exquisite four-bedroom semi-detached family home located on the desirable Kayemoor Road, nestled between Carshalton Beeches and South Sutton. Spanning an impressive 1,689 square feet, this property has been tastefully styled, offering a perfect blend of comfort and elegance.Upon entering, you will find two spacious reception rooms, providing ample space for both relaxation and entertaining. The separate lounge and dining room create a welcoming atmosphere, while the superbly extended kitchen serves as the heart of the home, ideal for family gatherings and culinary adventures. The four generously sized bedrooms ensure that there is plenty of room for family and guests alike. The property also boasts two well-appointed bathrooms, catering to the needs of a busy household. Outside, the large rear garden offers a tranquil retreat, perfect for outdoor activities or simply enjoying the fresh air. Additionally, the property provides parking for up to three vehicles, a valuable feature in this sought-after area.One of the standout benefits of this home is that it comes with no onward chain, making the buying process more straightforward and stress-free. Furthermore, the excellent transport links and proximity to highly regarded primary and secondary schools make this location particularly appealing for families.This stunning property is not to be missed. Please do not hesitate to call us now to secure your viewing and discover the charm of this wonderful family home.
Accommodation
Leaded light double wooden doors to..
Large entrance porch
Tiled effect flooring
Part glazed wooden front door to..
Spacious entrance hall
Obscure double glazed leaded light window to front aspect, dado rail, picture rail, cover ceiling, under stairs storage cupboard, covered radiator.
Lounge
Double glazed bay window to front aspect, double panel radiator, cover ceiling, fireplace with wooden mantle piece.
Dining room
Double glazed French doors leading to rear garden, double panel radiator.
Kitchen/breakfast room
Range of fitted wall units with matching cupboards and drawers below, roll top work surfaces with inlaid stainless steel sink and chrome mixer tap, inlaid gas hob with oven/grill below, Integrated fridge/freezer, integrated dishwasher, washing machine and tumble dryer, tiled flooring, breakfast bar and island with inlaid stainless steel sink and chrome mixer tap, double glazed window and patio doors to rear aspect , access to garage.
Downstairs WC
Consisting of low-level push button flush WC, wash hand basin with chrome taps.
Stairs to first floor landing
Loft access, dado rail, picture rail, coved ceiling.
Main bedroom
Double glazed window to front aspect, double panel radiator.
Bedroom two
Double glazed window to rear aspect, double panel radiator, fitted wardrobes, picture rail.
Bedroom three
Double glazed windows to front and rear aspects, two double panel radiators.
Bedroom four
Double glazed window to front aspect, single panel radiator, coved ceiling, wood laminate flooring.
Bathroom
Spacious four piece suite consisting of tiled walk in cubicle with thermostatic shower and hand attachment, panel enclosed bath with Victorian style chrome mixer tap and hand attachment, pedestal wash hand basin with chrome taps, low-level flush WC, heated chrome towel rail, tiled flooring, obscure double glazed window to rear aspect, double panel radiator.
Rear garden (Easterly aspect) – approximately 70ft Large paved patio with decking area at side, steps leading to lawn section with mature shrubs and flowers bordering, outside tap, fence enclosed, gated side access.
Garage at side
Front
Paved driveway providing off street parking with flowerbed at side.
BUYER’S INFORMATION
Under UK law, estate agents are legally required to conduct Anti-Money Laundering (AML) checks on buyers and sellers to comply with regulations. These checks are mandatory, and estate agents can face penalties if they fail to perform them. We use the services of a third party to help conduct these checks thoroughly. As such there is a charge of £36 including vat, per person. Please note, we are unable to issue a memorandum of sale until these checks are complete.
Viewing
Please contact us on 020 4537 3222 if you wish to arrange a viewing appointment for this property, or require further information.
Energy Performance Certificate
Click here to view the Energy Efficiency Rating and Environmental Impact Rating for this property.
Disclaimer
Watson Homes - SM6 endeavour to maintain accurate depictions of properties in Virtual Tours, Floor Plans and descriptions, however, these are intended only as a guide and purchasers must satisfy themselves by personal inspection.
Share
Request aValuation
Thinking of selling or letting your property? Request a free property valuation

