Details
The Byway, Sutton, SM2
Guide price £950,000
(Under Offer)
Description
Watson Homes is thrilled to present this rarely available charming property. Whether you are looking to settle down or invest, this home on The Byway is an opportunity not to be missed. Come and experience the allure of this delightful residence for yourself.Located in this ever desirable and highly sought after road, The Byway is perfect for the Harris Academy as well as Seaton House and Barrow Hedges Primary School, as well as offering great transport links.
Accommodation
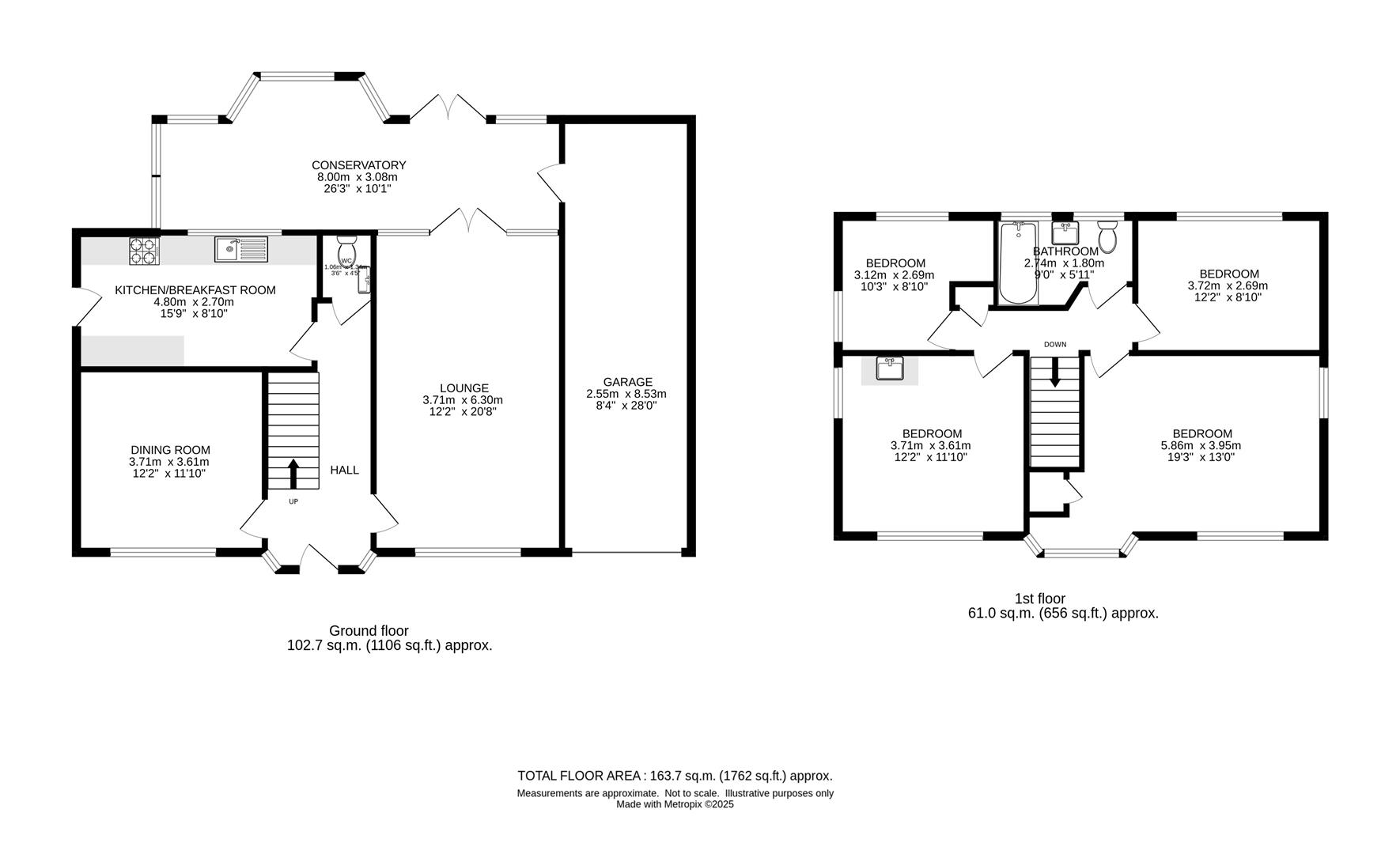
Covered entrance
Obscure glazed wooden front door to..
Spacious entrance hall
Obscure glazed windows to front aspect, plate rack, under stairs storage cupboard, single panel radiator.
Lounge
Glazed leaded light windows to front aspect, two single panel radiators, fireplace with tiled surround, leaded light glazed window to side aspect and double doors leading to conservatory.
Dining room
Glazed leaded light window to front aspect, fireplace with brick surround, double panel radiator, serving hatch, plate rack.
Kitchen/breakfast room
Range of fitted wall units with matching cupboards and drawers below, roll top works surfaces with inlaid stainless steel sink and chrome mixer tap, space for cooker, space and plumbing for washing machine, wall mounted boiler, tile splash back, glazed window to rear aspect and door to side, single panel radiator.
Conservatory
Glazed windows to side and rear aspects and doors leading to garden with further access to garage, tiled flooring.
Downstairs WC
Consisting of low-level flush WC and wash hand basin with chrome mixer tap.
Stairs to 1st floor landing
Loft access, cupboard housing hot water tank.
Bedroom one
Glazed leaded light window to front aspect and further windows at side, single panel radiator, built in wardrobe, picture rail, fireplace with tiled surround.
Bedroom two
Glazed leaded light windows to front and side aspects, single panel radiator, picture rail.
Bedroom three
Glazed leaded light window to rear aspect, two single panel radiators, picture rail, vanity unit with wash hand basin and chrome taps.
Bedroom four
Glazed leaded light windows to side and rear aspect, single panel radiator, picture rail.
Bathroom
Comprising panel enclosed bath with Victorian style chrome mixer tap and hand attachment, wash hand basin with chrome mixer tap, low-level push button flush WC, part tiled walls, single panel radiator, glazed windows to rear aspect.
Rear garden (Easterly aspect)
Approximately 200ft
Large paved patio area with footsteps leading to lawn, well matured shrubs and flower beds bordering, fence enclosed, garden shed, outside tap, gated side access.
Garage at side
Up/over door at front.
Front
Block paved driveway providing off street parking with lawn area and footpath at side, brick wall border.
BUYER’S INFORMATION
Under UK law, estate agents are legally required to conduct Anti-Money Laundering (AML) checks on buyers and sellers to comply with regulations. These checks are mandatory, and estate agents can face penalties if they fail to perform them. We use the services of a third party to help conduct these checks thoroughly. As such there is a charge of £36 including vat, per person. Please note, we are unable to issue a memorandum of sale until these checks are complete.
Viewing
Please contact us on 020 4537 3222 if you wish to arrange a viewing appointment for this property, or require further information.
Energy Performance Certificate
Click here to view the Energy Efficiency Rating and Environmental Impact Rating for this property.
Disclaimer
Watson Homes - SM6 endeavour to maintain accurate depictions of properties in Virtual Tours, Floor Plans and descriptions, however, these are intended only as a guide and purchasers must satisfy themselves by personal inspection.
Watson Homes is thrilled to present this rarely available charming property. Whether you are looking to settle down or invest, this home on The Byway is an opportunity not to be missed. Come and experience the allure of this delightful residence for yourself.Located in this ever desirable and highly sought after road, The Byway is perfect for the Harris Academy as well as Seaton House and Barrow Hedges Primary School, as well as offering great transport links.
Accommodation
Covered entrance
Obscure glazed wooden front door to..
Spacious entrance hall
Obscure glazed windows to front aspect, plate rack, under stairs storage cupboard, single panel radiator.
Lounge
Glazed leaded light windows to front aspect, two single panel radiators, fireplace with tiled surround, leaded light glazed window to side aspect and double doors leading to conservatory.
Dining room
Glazed leaded light window to front aspect, fireplace with brick surround, double panel radiator, serving hatch, plate rack.
Kitchen/breakfast room
Range of fitted wall units with matching cupboards and drawers below, roll top works surfaces with inlaid stainless steel sink and chrome mixer tap, space for cooker, space and plumbing for washing machine, wall mounted boiler, tile splash back, glazed window to rear aspect and door to side, single panel radiator.
Conservatory
Glazed windows to side and rear aspects and doors leading to garden with further access to garage, tiled flooring.
Downstairs WC
Consisting of low-level flush WC and wash hand basin with chrome mixer tap.
Stairs to 1st floor landing
Loft access, cupboard housing hot water tank.
Bedroom one
Glazed leaded light window to front aspect and further windows at side, single panel radiator, built in wardrobe, picture rail, fireplace with tiled surround.
Bedroom two
Glazed leaded light windows to front and side aspects, single panel radiator, picture rail.
Bedroom three
Glazed leaded light window to rear aspect, two single panel radiators, picture rail, vanity unit with wash hand basin and chrome taps.
Bedroom four
Glazed leaded light windows to side and rear aspect, single panel radiator, picture rail.
Bathroom
Comprising panel enclosed bath with Victorian style chrome mixer tap and hand attachment, wash hand basin with chrome mixer tap, low-level push button flush WC, part tiled walls, single panel radiator, glazed windows to rear aspect.
Rear garden (Easterly aspect)
Approximately 200ft
Large paved patio area with footsteps leading to lawn, well matured shrubs and flower beds bordering, fence enclosed, garden shed, outside tap, gated side access.
Garage at side
Up/over door at front.
Front
Block paved driveway providing off street parking with lawn area and footpath at side, brick wall border.
BUYER’S INFORMATION
Under UK law, estate agents are legally required to conduct Anti-Money Laundering (AML) checks on buyers and sellers to comply with regulations. These checks are mandatory, and estate agents can face penalties if they fail to perform them. We use the services of a third party to help conduct these checks thoroughly. As such there is a charge of £36 including vat, per person. Please note, we are unable to issue a memorandum of sale until these checks are complete.
Viewing
Please contact us on 020 4537 3222 if you wish to arrange a viewing appointment for this property, or require further information.
Energy Performance Certificate
Click here to view the Energy Efficiency Rating and Environmental Impact Rating for this property.
Disclaimer
Watson Homes - SM6 endeavour to maintain accurate depictions of properties in Virtual Tours, Floor Plans and descriptions, however, these are intended only as a guide and purchasers must satisfy themselves by personal inspection.
Share
Request aValuation
Thinking of selling or letting your property? Request a free property valuation

