Details
The Manor Way, Wallington, SM6
£700,000
Description
Welcome to this charming semi-detached home located on the desirable The Manor Way in Wallington. This delightful property boasts an impressive 1,475 square feet of living space, featuring four well-proportioned bedrooms, two inviting reception rooms, and a study, making it an ideal family home. The modern kitchen/breakfast room is well equipped, while the additional reception rooms provide ample space for relaxation and family gatherings. The property also includes a garage and off street parking, ensuring convenience for you and your guests. Step outside to discover a pretty rear garden, a lovely spot for outdoor activities or simply enjoying the fresh air. The location is particularly appealing, situated on a quiet no-through road, yet within easy reach of local amenities. Families will appreciate the proximity to excellent schools, including Wallington County Grammar School, Beddington Infants, and Holy Trinity Primary School, all just a short walk away. Local shops and bus links are also conveniently close, with both Wallington and Carshalton Village just a leisurely stroll from your doorstep. This lovely property offers a perfect blend of space, comfort, and a sought-after location. Viewing is highly recommended to fully appreciate all that this home has to offer.
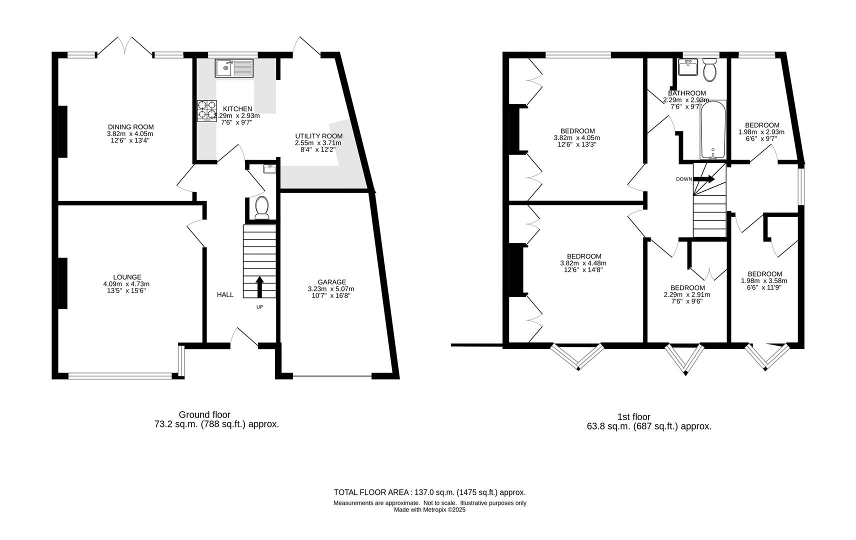
Accommodation
Sheltered entrance
Stained glass leaded light front door to..
Spacious entrance hall
Stripped floorboards, covered radiator, dado rail, coved ceiling.
Lounge
UPVC double glazed leaded light bay window to front aspect, covered radiator, feature cast iron fireplace, bespoke fitted shelving and cupboards, dado rail, coved ceiling and ceiling rose.
Dining room
UPVC double glazed windows and patio doors to rear aspect, covered radiator, bespoke fitted shelving units and cupboards, feature cast iron fireplace, stripped floorboards, coved ceiling and ceiling rose.
Kitchen/breakfast room
Range fitted wall units with matching cupboards and drawers below, quartz worktops with inlaid stainless steel sink and chrome mixer tap, inlaid gas hob with oven/grill below and extractor fan above, integrated washing machine and dishwasher, integrated fridge/freezer, double panel radiator, Karndean flooring, breakfast bar area, wall mounted boiler, UPVC double glazed window to rear aspect and door leading to garden.
Downstairs WC
Consisting of low-level flush WC, wash hand basin with chrome taps, tiled flooring, extractor fan.
Stairs to 1st floor landing
Dado rail, loft access, wall mounted radiator, UPVC double glazed window to side aspect.
Bedroom one
UPVC double glazed leaded light bay window to front aspect, single panel radiator, fitted wardrobes, feature cast iron fireplace, coved ceiling.
Bedroom two
UPVC double glazed window to rear aspect, fitted wardrobes, single panel radiator, decorative ceiling, feature cast iron fireplace.
Bedroom three
UPVC double glazed leaded light or bay window to front aspect, double panel radiator, built in wardrobe, wood flooring, coved ceiling
Bedroom four
UPVC double glazed leaded light or bay window to front aspect, fitted shelving and desk area, Karndean flooring, covered radiator, built-in wardrobe, coved ceiling.
Bedroom 5/study
UPVC double glazed window to rear aspect, oak flooring, double panel radiator, coved ceiling, fitted shelving and desk area.
Bathroom
Three piece suite comprising panel enclosed bath with chrome taps and thermostatic power shower, wash hand basin with chrome mixer tap, low-level flush WC, wood laminate flooring, part tiled walls, heated towel rail, airing cupboard, obscure UPVC double glazed window to rear aspect, coved ceiling.
Rear garden – approximately 90ft
Paved patio area leading to lawn section with shrubs bordering, rear composite decking area and summer house, fence enclosed, outside tap, garden shed.
Garage at side
Wooden double doors at front.
BUYER’S INFORMATION
Under UK law, estate agents are legally required to conduct Anti-Money Laundering (AML) checks on buyers and sellers to comply with regulations. These checks are mandatory, and estate agents can face penalties if they fail to perform them. We use the services of a third party to help conduct these checks thoroughly. As such there is a charge of £36 including vat, per person. Please note, we are unable to issue a memorandum of sale until these checks are complete.
Viewing
Please contact us on 020 4537 3222 if you wish to arrange a viewing appointment for this property, or require further information.
Energy Performance Certificate
Click here to view the Energy Efficiency Rating and Environmental Impact Rating for this property.
Disclaimer
Watson Homes - SM6 endeavour to maintain accurate depictions of properties in Virtual Tours, Floor Plans and descriptions, however, these are intended only as a guide and purchasers must satisfy themselves by personal inspection.
Welcome to this charming semi-detached home located on the desirable The Manor Way in Wallington. This delightful property boasts an impressive 1,475 square feet of living space, featuring four well-proportioned bedrooms, two inviting reception rooms, and a study, making it an ideal family home. The modern kitchen/breakfast room is well equipped, while the additional reception rooms provide ample space for relaxation and family gatherings. The property also includes a garage and off street parking, ensuring convenience for you and your guests. Step outside to discover a pretty rear garden, a lovely spot for outdoor activities or simply enjoying the fresh air. The location is particularly appealing, situated on a quiet no-through road, yet within easy reach of local amenities. Families will appreciate the proximity to excellent schools, including Wallington County Grammar School, Beddington Infants, and Holy Trinity Primary School, all just a short walk away. Local shops and bus links are also conveniently close, with both Wallington and Carshalton Village just a leisurely stroll from your doorstep. This lovely property offers a perfect blend of space, comfort, and a sought-after location. Viewing is highly recommended to fully appreciate all that this home has to offer.
Accommodation
Sheltered entrance
Stained glass leaded light front door to..
Spacious entrance hall
Stripped floorboards, covered radiator, dado rail, coved ceiling.
Lounge
UPVC double glazed leaded light bay window to front aspect, covered radiator, feature cast iron fireplace, bespoke fitted shelving and cupboards, dado rail, coved ceiling and ceiling rose.
Dining room
UPVC double glazed windows and patio doors to rear aspect, covered radiator, bespoke fitted shelving units and cupboards, feature cast iron fireplace, stripped floorboards, coved ceiling and ceiling rose.
Kitchen/breakfast room
Range fitted wall units with matching cupboards and drawers below, quartz worktops with inlaid stainless steel sink and chrome mixer tap, inlaid gas hob with oven/grill below and extractor fan above, integrated washing machine and dishwasher, integrated fridge/freezer, double panel radiator, Karndean flooring, breakfast bar area, wall mounted boiler, UPVC double glazed window to rear aspect and door leading to garden.
Downstairs WC
Consisting of low-level flush WC, wash hand basin with chrome taps, tiled flooring, extractor fan.
Stairs to 1st floor landing
Dado rail, loft access, wall mounted radiator, UPVC double glazed window to side aspect.
Bedroom one
UPVC double glazed leaded light bay window to front aspect, single panel radiator, fitted wardrobes, feature cast iron fireplace, coved ceiling.
Bedroom two
UPVC double glazed window to rear aspect, fitted wardrobes, single panel radiator, decorative ceiling, feature cast iron fireplace.
Bedroom three
UPVC double glazed leaded light or bay window to front aspect, double panel radiator, built in wardrobe, wood flooring, coved ceiling
Bedroom four
UPVC double glazed leaded light or bay window to front aspect, fitted shelving and desk area, Karndean flooring, covered radiator, built-in wardrobe, coved ceiling.
Bedroom 5/study
UPVC double glazed window to rear aspect, oak flooring, double panel radiator, coved ceiling, fitted shelving and desk area.
Bathroom
Three piece suite comprising panel enclosed bath with chrome taps and thermostatic power shower, wash hand basin with chrome mixer tap, low-level flush WC, wood laminate flooring, part tiled walls, heated towel rail, airing cupboard, obscure UPVC double glazed window to rear aspect, coved ceiling.
Rear garden – approximately 90ft
Paved patio area leading to lawn section with shrubs bordering, rear composite decking area and summer house, fence enclosed, outside tap, garden shed.
Garage at side
Wooden double doors at front.
BUYER’S INFORMATION
Under UK law, estate agents are legally required to conduct Anti-Money Laundering (AML) checks on buyers and sellers to comply with regulations. These checks are mandatory, and estate agents can face penalties if they fail to perform them. We use the services of a third party to help conduct these checks thoroughly. As such there is a charge of £36 including vat, per person. Please note, we are unable to issue a memorandum of sale until these checks are complete.
Viewing
Please contact us on 020 4537 3222 if you wish to arrange a viewing appointment for this property, or require further information.
Energy Performance Certificate
Click here to view the Energy Efficiency Rating and Environmental Impact Rating for this property.
Disclaimer
Watson Homes - SM6 endeavour to maintain accurate depictions of properties in Virtual Tours, Floor Plans and descriptions, however, these are intended only as a guide and purchasers must satisfy themselves by personal inspection.
Share
Request aValuation
Thinking of selling or letting your property? Request a free property valuation

