Details
Matlock Crescent, Sutton, SM3
OIEO £595,000
(Under Offer)
Description
Watson Homes are delighted to offer this beautifully presented and extended family home, benefitting from well-proportioned room sizes throughout, an open-plan living space and a garden room with en-suite facilities ideal for working from home or guest accommodation.The property is located close to numerous well-regarded schools including Cheam Park Farm Primary Academy, Cheam High School, and Nonsuch High School for Girls. Several amenities are available including a parade of shops under half a mile away at Church Hill Road, supermarkets and shops at North Cheam and bus routes to towards Sutton and Morden, the latter having a Northern Line tube station.
Accommodation
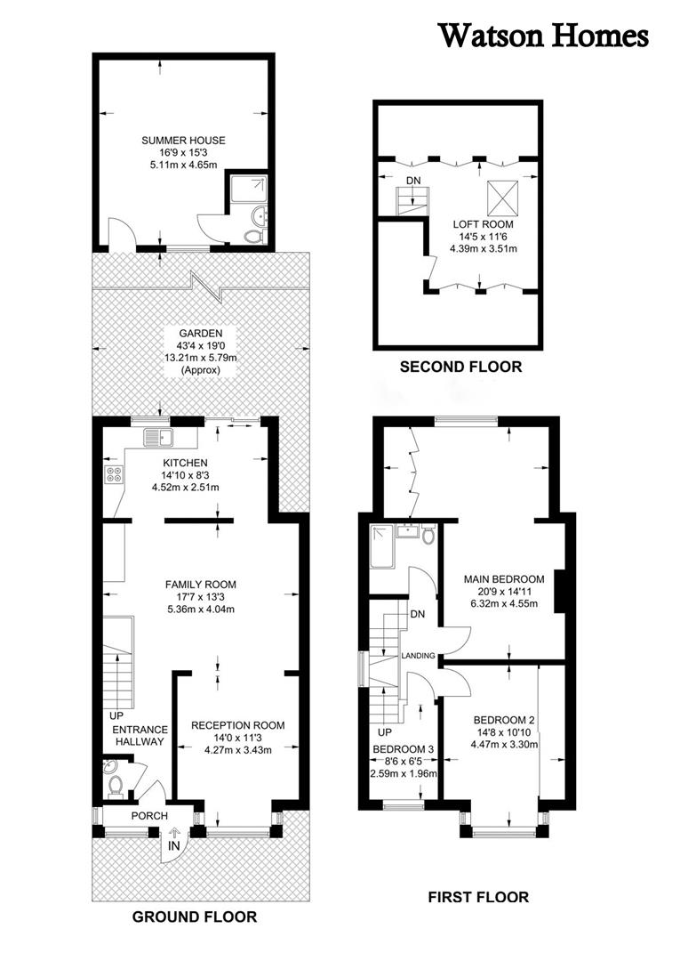
UPVC double glazed entrance porch, part glazed stained glass front door door to..
Spacious entrance hall
Vinyl marble effect flooring, dado rail, under stairs storage cupboard, modern radiator, open plan to..
Lounge/diner/family room
UPVC double glazed bay window to front aspect, fitted plantation shutters, vinyl marble effect flooring, three modern radiators, wall mounted thermostat, coved ceiling.
Kitchen
Range of fitted wall units with matching cupboards and drawers below, roll top work surfaces with inlaid sink and chrome mixer tap with hose attachment, integrated dishwasher, integrated oven/grill, five ring gas hob with extractor fan above, space for American style fridge freezer, marble effect flooring, UPVC double glazed window and sliding door to rear aspect.
Downstairs WC
Consisting of low-level push button flush WC, wash hand basin with chrome mixer tap, tiled walls, wood flooring, extractor fan.
Stairs to 1st floor landing
Obscure UPVC double glazed window to side aspect, dado rail, access to luxury loft space
Bedroom one
UPVC double glazed window to rear aspect, fitted plantation shutters, built-in wardrobe, double panelled radiators.
Bedroom two
UPVC double glazed bay window to front aspect, fitted plantation shutters, single panel radiator, built-in wardrobes with sliding mirrored doors.
Bedroom three
UPVC double glazed window to front aspect, fitted plantation shutters, single panel radiator.
Bathroom
Consisting of tiled cubicle with thermostatic shower and hand attachment, wash hand basin with chrome mixer tap and storage cupboards below, low level pushbutton and flush WC, heated chrome towel rail, extractor fan, tiled walls.
Luxury loft space
Velux window to rear aspect, built in wardrobes and eaves storage.
Rear garden – approximately 50ft (Southwest facing)
Artificial lawn area leading to large patio garden with flowerbeds bordering, fence enclosed with gated side access, outside water and power supply.
Detached cabin
(Currently used as office space)
UPVC double glazed window and door at front, space and plumbing for washing machine and tumble dryer, wood flooring, wall mounted heater.
Separate shower room
Consisting of tiled cubicle with thermostatic shower and sliding screen, pedestal wash hand basin with chrome mixer tap, low-level push button flush WC, tiled walls, obscure UPVC double glazed window to front aspect, extractor fan.
BUYER’S INFORMATION
Under UK law, estate agents are legally required to conduct Anti-Money Laundering (AML) checks on buyers and sellers to comply with regulations. These checks are mandatory, and estate agents can face penalties if they fail to perform them. We use the services of a third party to help conduct these checks thoroughly. As such there is a charge of £36 including vat, per person. Please note, we are unable to issue a memorandum of sale until these checks are complete
Viewing
Please contact us on 020 3196 1686 if you wish to arrange a viewing appointment for this property, or require further information.
Energy Performance Certificate
Click here to view the Energy Efficiency Rating and Environmental Impact Rating for this property.
Disclaimer
Watson Homes - SM6 endeavour to maintain accurate depictions of properties in Virtual Tours, Floor Plans and descriptions, however, these are intended only as a guide and purchasers must satisfy themselves by personal inspection.
Watson Homes are delighted to offer this beautifully presented and extended family home, benefitting from well-proportioned room sizes throughout, an open-plan living space and a garden room with en-suite facilities ideal for working from home or guest accommodation.The property is located close to numerous well-regarded schools including Cheam Park Farm Primary Academy, Cheam High School, and Nonsuch High School for Girls. Several amenities are available including a parade of shops under half a mile away at Church Hill Road, supermarkets and shops at North Cheam and bus routes to towards Sutton and Morden, the latter having a Northern Line tube station.
Accommodation
UPVC double glazed entrance porch, part glazed stained glass front door door to..
Spacious entrance hall
Vinyl marble effect flooring, dado rail, under stairs storage cupboard, modern radiator, open plan to..
Lounge/diner/family room
UPVC double glazed bay window to front aspect, fitted plantation shutters, vinyl marble effect flooring, three modern radiators, wall mounted thermostat, coved ceiling.
Kitchen
Range of fitted wall units with matching cupboards and drawers below, roll top work surfaces with inlaid sink and chrome mixer tap with hose attachment, integrated dishwasher, integrated oven/grill, five ring gas hob with extractor fan above, space for American style fridge freezer, marble effect flooring, UPVC double glazed window and sliding door to rear aspect.
Downstairs WC
Consisting of low-level push button flush WC, wash hand basin with chrome mixer tap, tiled walls, wood flooring, extractor fan.
Stairs to 1st floor landing
Obscure UPVC double glazed window to side aspect, dado rail, access to luxury loft space
Bedroom one
UPVC double glazed window to rear aspect, fitted plantation shutters, built-in wardrobe, double panelled radiators.
Bedroom two
UPVC double glazed bay window to front aspect, fitted plantation shutters, single panel radiator, built-in wardrobes with sliding mirrored doors.
Bedroom three
UPVC double glazed window to front aspect, fitted plantation shutters, single panel radiator.
Bathroom
Consisting of tiled cubicle with thermostatic shower and hand attachment, wash hand basin with chrome mixer tap and storage cupboards below, low level pushbutton and flush WC, heated chrome towel rail, extractor fan, tiled walls.
Luxury loft space
Velux window to rear aspect, built in wardrobes and eaves storage.
Rear garden – approximately 50ft (Southwest facing)
Artificial lawn area leading to large patio garden with flowerbeds bordering, fence enclosed with gated side access, outside water and power supply.
Detached cabin
(Currently used as office space)
UPVC double glazed window and door at front, space and plumbing for washing machine and tumble dryer, wood flooring, wall mounted heater.
Separate shower room
Consisting of tiled cubicle with thermostatic shower and sliding screen, pedestal wash hand basin with chrome mixer tap, low-level push button flush WC, tiled walls, obscure UPVC double glazed window to front aspect, extractor fan.
BUYER’S INFORMATION
Under UK law, estate agents are legally required to conduct Anti-Money Laundering (AML) checks on buyers and sellers to comply with regulations. These checks are mandatory, and estate agents can face penalties if they fail to perform them. We use the services of a third party to help conduct these checks thoroughly. As such there is a charge of £36 including vat, per person. Please note, we are unable to issue a memorandum of sale until these checks are complete
Viewing
Please contact us on 020 3196 1686 if you wish to arrange a viewing appointment for this property, or require further information.
Energy Performance Certificate
Click here to view the Energy Efficiency Rating and Environmental Impact Rating for this property.
Disclaimer
Watson Homes - SM6 endeavour to maintain accurate depictions of properties in Virtual Tours, Floor Plans and descriptions, however, these are intended only as a guide and purchasers must satisfy themselves by personal inspection.
Share
Request aValuation
Thinking of selling or letting your property? Request a free property valuation

