Details
Windsor Avenue, Sutton, SM3
OIEO £565,000
(Under Offer)
Description
*** NO ONWARD CHAIN *** Located on the desirable Windsor Avenue, this charming terraced house in Cheam, Sutton, offers a delightful modern appeal, making it an ideal family home. The property features two inviting reception rooms that provide ample space for relaxation and entertainment. With three well-proportioned bedrooms, this home is perfect for families seeking comfort and convenience.The property boasts newly fitted windows throughout, bathroom and kitchen, complete with new appliances, ensuring a fresh and contemporary living experience. The private driveway adds to the convenience, allowing for easy parking, while the low maintenance garden offers a lovely outdoor space for children to play or for hosting summer gatherings.Situated in a well-established residential area, this home benefits from excellent local schools, including Cheam Park Farm Primary Academy, St Cecilia’s Catholic Primary, Cheam Fields Primary, Cheam High School and Glenthorne High School making it an attractive option for families prioritising education. For those commuting to London, the property enjoys good transport links, with nearby stations such as West Sutton, Sutton, and Cheam, making daily journeys straightforward and efficient. In summary, this delightful three-bedroom home on Windsor Avenue presents a wonderful opportunity for families looking to settle in a vibrant community with excellent amenities and transport options. Don’t miss the chance to make this charming property your new home.
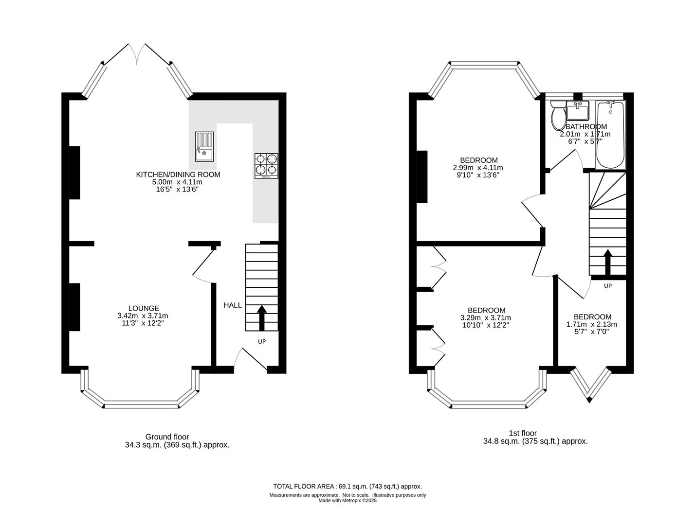
Accommodation
Obscure double glazed composite front door to..
Spacious entrance hall
Wood effect flooring, double panel radiator, wall mounted digital thermostat, under stairs storage cupboard.
Lounge
UPVC double glazed bay window to front aspect, single panel radiator, fitted shelving and storage cupboards, open fireplace, wood effect flooring, open plan to..
Kitchen/diner
UPVC double glazed full length windows and double doors leading to garden, wood effect flooring, double panel radiator, fitted shelving and storage cupboards.
Kitchen
Range of fitted gloss wall units with matching cupboards and drawers below, quartz worktops with inlaid stainless steel sink and brushed chrome mixer tap, integrated fridge and freezer, integrated dishwasher and washing machine, integrated tumble dryer, inlaid induction hob with oven/grill at side, wood effect flooring, cupboard housing “Worcester” combination boiler.
Stairs to 1st floor landing
Newly fitted carpet, loft access.
Bedroom one
UPVC double glazed bay window to front aspect, newly fitted carpet, fitted wardrobes, double panel radiator.
Bedroom two
UPVC double glazed bay window to rear aspect, newly fitted carpet, double panel radiator.
Bedroom three
UPVC double glazed bay window to front aspect, newly fitted carpet, single panel radiator.
Bathroom
Modern three piece suite comprising panel enclosed bath with chrome mixer tap and thermostatic shower with hand attachment, pedestal wash hand basin with chrome mixer tap, low-level push button flush WC, heated chrome towel rail, part tiled walls, obscure UPVC double glazed windows to rear aspect.
Rear garden
Paved patio area leading to lawn section with raised flowerbeds bordering, fence enclosed, outside water and power supply.
Front
Block paved driveway providing ample off street parking, wall mounted EV point.
BUYER’S INFORMATION
Under UK law, estate agents are legally required to conduct Anti-Money Laundering (AML) checks on buyers and sellers to comply with regulations. These checks are mandatory, and estate agents can face penalties if they fail to perform them. We use the services of a third party to help conduct these checks thoroughly. As such there is a charge of £36 including vat, per person. Please note, we are unable to issue a memorandum of sale until these checks are complete
Viewing
Please contact us on 020 3196 1686 if you wish to arrange a viewing appointment for this property, or require further information.
Energy Performance Certificate
Click here to view the Energy Efficiency Rating and Environmental Impact Rating for this property.
Disclaimer
Watson Homes - SM6 endeavour to maintain accurate depictions of properties in Virtual Tours, Floor Plans and descriptions, however, these are intended only as a guide and purchasers must satisfy themselves by personal inspection.
*** NO ONWARD CHAIN *** Located on the desirable Windsor Avenue, this charming terraced house in Cheam, Sutton, offers a delightful modern appeal, making it an ideal family home. The property features two inviting reception rooms that provide ample space for relaxation and entertainment. With three well-proportioned bedrooms, this home is perfect for families seeking comfort and convenience.The property boasts newly fitted windows throughout, bathroom and kitchen, complete with new appliances, ensuring a fresh and contemporary living experience. The private driveway adds to the convenience, allowing for easy parking, while the low maintenance garden offers a lovely outdoor space for children to play or for hosting summer gatherings.Situated in a well-established residential area, this home benefits from excellent local schools, including Cheam Park Farm Primary Academy, St Cecilia’s Catholic Primary, Cheam Fields Primary, Cheam High School and Glenthorne High School making it an attractive option for families prioritising education. For those commuting to London, the property enjoys good transport links, with nearby stations such as West Sutton, Sutton, and Cheam, making daily journeys straightforward and efficient. In summary, this delightful three-bedroom home on Windsor Avenue presents a wonderful opportunity for families looking to settle in a vibrant community with excellent amenities and transport options. Don’t miss the chance to make this charming property your new home.
Accommodation
Obscure double glazed composite front door to..
Spacious entrance hall
Wood effect flooring, double panel radiator, wall mounted digital thermostat, under stairs storage cupboard.
Lounge
UPVC double glazed bay window to front aspect, single panel radiator, fitted shelving and storage cupboards, open fireplace, wood effect flooring, open plan to..
Kitchen/diner
UPVC double glazed full length windows and double doors leading to garden, wood effect flooring, double panel radiator, fitted shelving and storage cupboards.
Kitchen
Range of fitted gloss wall units with matching cupboards and drawers below, quartz worktops with inlaid stainless steel sink and brushed chrome mixer tap, integrated fridge and freezer, integrated dishwasher and washing machine, integrated tumble dryer, inlaid induction hob with oven/grill at side, wood effect flooring, cupboard housing “Worcester” combination boiler.
Stairs to 1st floor landing
Newly fitted carpet, loft access.
Bedroom one
UPVC double glazed bay window to front aspect, newly fitted carpet, fitted wardrobes, double panel radiator.
Bedroom two
UPVC double glazed bay window to rear aspect, newly fitted carpet, double panel radiator.
Bedroom three
UPVC double glazed bay window to front aspect, newly fitted carpet, single panel radiator.
Bathroom
Modern three piece suite comprising panel enclosed bath with chrome mixer tap and thermostatic shower with hand attachment, pedestal wash hand basin with chrome mixer tap, low-level push button flush WC, heated chrome towel rail, part tiled walls, obscure UPVC double glazed windows to rear aspect.
Rear garden
Paved patio area leading to lawn section with raised flowerbeds bordering, fence enclosed, outside water and power supply.
Front
Block paved driveway providing ample off street parking, wall mounted EV point.
BUYER’S INFORMATION
Under UK law, estate agents are legally required to conduct Anti-Money Laundering (AML) checks on buyers and sellers to comply with regulations. These checks are mandatory, and estate agents can face penalties if they fail to perform them. We use the services of a third party to help conduct these checks thoroughly. As such there is a charge of £36 including vat, per person. Please note, we are unable to issue a memorandum of sale until these checks are complete
Viewing
Please contact us on 020 3196 1686 if you wish to arrange a viewing appointment for this property, or require further information.
Energy Performance Certificate
Click here to view the Energy Efficiency Rating and Environmental Impact Rating for this property.
Disclaimer
Watson Homes - SM6 endeavour to maintain accurate depictions of properties in Virtual Tours, Floor Plans and descriptions, however, these are intended only as a guide and purchasers must satisfy themselves by personal inspection.
Share
Request aValuation
Thinking of selling or letting your property? Request a free property valuation

