Details
Chiltern Road, Sutton, SM2
Offers over £1,000,000
Description
Watson Homes are delighted to offer this immaculately presented three bedroom detached Bungalow. The property benefits from an ensuite shower room, a brick built garden room, a detached garage, a stunning rear garden with the added benefit of a secret garden with extra land, and ample off street parking.The property is located in sought after road just a short distance from Belmont train station offering links to London Bridge and Victoria, as well as Carshalton Beeches and Sutton mainline train stations and their bustling high streets. The nearby villages of Banstead and Cheam also offer a good selection of shops, bars, restaurants, boutiques and coffee shops, as well as plenty of leisure activities, parks and well-regarded schooling - both independent and state – including the recently-opened Harris Academy, Sutton Grammar and Nonsuch School for Girls to name but a few.
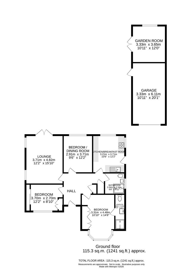
Accommodation
Covered entrance
Obscure double glazed front door to..
Entrance porch
Quarry tiled step, part glazed wood wooden door to..
Entrance hall
Herringbone parquet flooring, modern radiator, fitted storage cupboard, picture rail.
Lounge
Obscure leaded light double glazed windows to side aspect and patio doors to rear, double panel radiator, wall mounted digital thermostat, fireplace with marble surround.
Kitchen/breakfast room
Range of fitted wooden wall units with matching cupboards and drawers below, granite effect roll top work surfaces with inlaid stainless steel sink and chrome mixer tap, space and plumbing for washing machine and dishwasher, space for cooker with extractor fan above, amtico herringbone flooring, obscure double glazed windows to side aspect, double glazed leaded light window to rear and door leading to side, tiled splash back, coved ceiling.
Bedroom one
Double glazed leaded light bay window to front aspect, double panel radiator, picture rail, fitted wardrobes, herringbone parquet flooring.
Ensuite shower room
Consisting of tiled cubicle with thermostatic shower, wash hand basin with chrome mixer tap, low-level push button flush WC, heated towel rail, extractor fan, tiled flooring, tiled walls.
Bedroom two
Double glazed leaded light window to front aspect, double panel radiator, built-in wardrobe with sliding doors, herringbone parquet flooring, coved ceiling.
Bedroom 3/dining room
Double glazed leaded light window to rear aspect, double panel radiator, herringbone parquet flooring, coved ceiling.
Bathroom
Consisting of tiled walk in cubicle with thermostatic “aqualisa” shower, wash hand basin with chrome mixer tap and storage cupboard below, low-level push button flush WC, tiled flooring, tiled walls, extractor fan, shaver point, heated towel rail, obscure double glazed window to side aspect.
Rear garden approximately 125ft plus secret garden.
Large paved patio area and footpath leading to rear, mainly laid to lawn with ann abundance of flowers and plants bordering, fence enclosed, gated side access.
Secret Garden
Further section of land with lawn and patio areas, greenhouse and garden shed, vegetable patches, fence enclosed.
Garden room
Tiled flooring, wall mounted heater, double glazed window to rear aspect and patio doors at side, wall light.
Detached garage
Up/Over door at front, hardstanding providing further offstreet parking if desired.
Side garden
Paved patio area, fence enclosed, gated side access.
Front
Paved carriage driveway providing off street parking with lawn sections and flowerbeds bordering.
BUYER’S INFORMATION
Under UK law, estate agents are legally required to conduct Anti-Money Laundering (AML) checks on buyers and sellers to comply with regulations. These checks are mandatory, and estate agents can face penalties if they fail to perform them. We use the services of a third party to help conduct these checks thoroughly. As such there is a charge of £36 including vat, per person. Please note, we are unable to issue a memorandum of sale until these checks are complete
Viewing
Please contact us on 020 4537 3222 if you wish to arrange a viewing appointment for this property, or require further information.
Energy Performance Certificate
Click here to view the Energy Efficiency Rating and Environmental Impact Rating for this property.
Disclaimer
Watson Homes - SM6 endeavour to maintain accurate depictions of properties in Virtual Tours, Floor Plans and descriptions, however, these are intended only as a guide and purchasers must satisfy themselves by personal inspection.
Watson Homes are delighted to offer this immaculately presented three bedroom detached Bungalow. The property benefits from an ensuite shower room, a brick built garden room, a detached garage, a stunning rear garden with the added benefit of a secret garden with extra land, and ample off street parking.The property is located in sought after road just a short distance from Belmont train station offering links to London Bridge and Victoria, as well as Carshalton Beeches and Sutton mainline train stations and their bustling high streets. The nearby villages of Banstead and Cheam also offer a good selection of shops, bars, restaurants, boutiques and coffee shops, as well as plenty of leisure activities, parks and well-regarded schooling - both independent and state – including the recently-opened Harris Academy, Sutton Grammar and Nonsuch School for Girls to name but a few.
Accommodation
Covered entrance
Obscure double glazed front door to..
Entrance porch
Quarry tiled step, part glazed wood wooden door to..
Entrance hall
Herringbone parquet flooring, modern radiator, fitted storage cupboard, picture rail.
Lounge
Obscure leaded light double glazed windows to side aspect and patio doors to rear, double panel radiator, wall mounted digital thermostat, fireplace with marble surround.
Kitchen/breakfast room
Range of fitted wooden wall units with matching cupboards and drawers below, granite effect roll top work surfaces with inlaid stainless steel sink and chrome mixer tap, space and plumbing for washing machine and dishwasher, space for cooker with extractor fan above, amtico herringbone flooring, obscure double glazed windows to side aspect, double glazed leaded light window to rear and door leading to side, tiled splash back, coved ceiling.
Bedroom one
Double glazed leaded light bay window to front aspect, double panel radiator, picture rail, fitted wardrobes, herringbone parquet flooring.
Ensuite shower room
Consisting of tiled cubicle with thermostatic shower, wash hand basin with chrome mixer tap, low-level push button flush WC, heated towel rail, extractor fan, tiled flooring, tiled walls.
Bedroom two
Double glazed leaded light window to front aspect, double panel radiator, built-in wardrobe with sliding doors, herringbone parquet flooring, coved ceiling.
Bedroom 3/dining room
Double glazed leaded light window to rear aspect, double panel radiator, herringbone parquet flooring, coved ceiling.
Bathroom
Consisting of tiled walk in cubicle with thermostatic “aqualisa” shower, wash hand basin with chrome mixer tap and storage cupboard below, low-level push button flush WC, tiled flooring, tiled walls, extractor fan, shaver point, heated towel rail, obscure double glazed window to side aspect.
Rear garden approximately 125ft plus secret garden.
Large paved patio area and footpath leading to rear, mainly laid to lawn with ann abundance of flowers and plants bordering, fence enclosed, gated side access.
Secret Garden
Further section of land with lawn and patio areas, greenhouse and garden shed, vegetable patches, fence enclosed.
Garden room
Tiled flooring, wall mounted heater, double glazed window to rear aspect and patio doors at side, wall light.
Detached garage
Up/Over door at front, hardstanding providing further offstreet parking if desired.
Side garden
Paved patio area, fence enclosed, gated side access.
Front
Paved carriage driveway providing off street parking with lawn sections and flowerbeds bordering.
BUYER’S INFORMATION
Under UK law, estate agents are legally required to conduct Anti-Money Laundering (AML) checks on buyers and sellers to comply with regulations. These checks are mandatory, and estate agents can face penalties if they fail to perform them. We use the services of a third party to help conduct these checks thoroughly. As such there is a charge of £36 including vat, per person. Please note, we are unable to issue a memorandum of sale until these checks are complete
Viewing
Please contact us on 020 4537 3222 if you wish to arrange a viewing appointment for this property, or require further information.
Energy Performance Certificate
Click here to view the Energy Efficiency Rating and Environmental Impact Rating for this property.
Disclaimer
Watson Homes - SM6 endeavour to maintain accurate depictions of properties in Virtual Tours, Floor Plans and descriptions, however, these are intended only as a guide and purchasers must satisfy themselves by personal inspection.
Share
Request aValuation
Thinking of selling or letting your property? Request a free property valuation

