Details
Hillview Road, Sutton, SM1
£625,000
(Under Offer)
Description
NO ONWARD CHAIN !!!!!Watson Homes is pleased to present this charming three-bedroom extended family home located on the desirable Hillview Road in Sutton. This property offers a perfect blend of modern living and comfort, making it an ideal choice for families seeking a welcoming environment.Upon entering, you will find two spacious reception rooms that provide ample space for relaxation and entertaining. The open-plan layout enhances the flow of the home, creating a warm and inviting atmosphere. The property also features a convenient downstairs WC, adding to the practicality of family life.The well-appointed kitchen leads to a delightful rear garden. This outdoor space is perfect for enjoying sunny afternoons or hosting gatherings with friends and family. Additionally, the property offers generous off-street parking for up to four vehicles, ensuring convenience for residents and guests alike. Additional bonus is the very large garage/ workshop at the rear of the garden. Situated in a sought-after residential area, this home is conveniently close to local amenities, green spaces, and excellent transport links. Families will appreciate the proximity to a number of highly regarded schools, including the esteemed Greenshaw High School, making this location particularly appealing for those with children.In summary, this immaculately presented three-bedroom home on Hillview Road is a wonderful opportunity for anyone looking to settle in a vibrant community. With its modern features, ample space, and beautiful surroundings, it is sure to meet the needs of a growing family. We invite you to arrange a viewing and experience all that this lovely property has to offer.
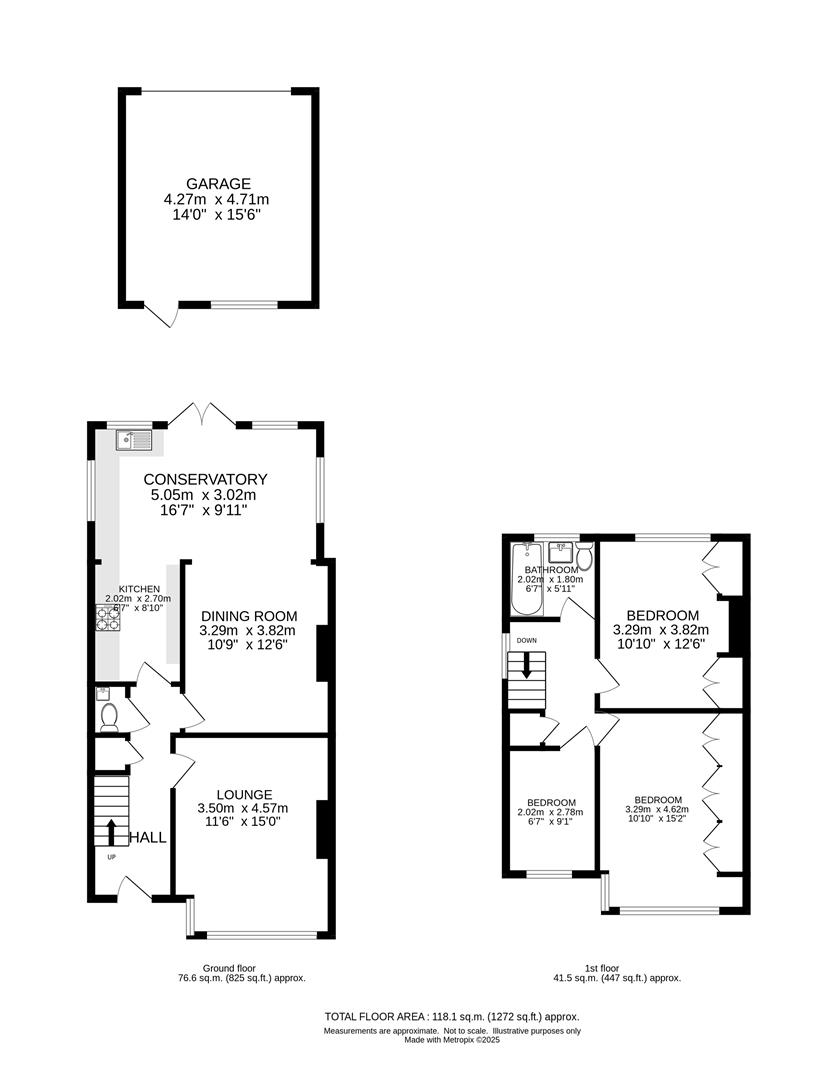
Accommodation
Covered entrance
Obscure double glazed composite front door to..
Spacious entrance hall
Amtico flooring, single panel radiator, obscure UPVC double glazed window to front aspect, wall mounted alarm panel, coved ceiling, wall mounted digital thermostat, under stairs storage cupboard.
Lounge
UPVC double glazed bay window to front aspect, double panel radiator, flame effect fireplace, Amtico flooring, bespoke fitted storage cupboards and display unit, coved ceiling.
Kitchen
Range of fitted gloss wall units with matching cupboards and drawers below, quartz worktops with inlaid induction hob and extractor fan above with double oven/grill at side, space for tall standing fridge/freezer, space and plumbing for washing machine, inlaid ceramic sink, chrome mixer with hose attachment, tempered glass splash back, Amtico flooring, obscure UPVC double glazed windows to side aspect with further windows and double doors to rear aspect, double panel radiator, open plan to..
Family room and dining area
Amtico flooring, modern radiator, serving hatch, coved ceiling, obscure UPVC double glazed windows to side aspect.
Downstairs WC
Consisting of low-level push button flush WC, wash hand basin with chrome taps, tiled flooring, extractor fan.
Stairs to 1st floor landing
UPVC double glazed window to side aspect, coved ceiling, large storage cupboard housing combination boiler , loft access with pulldown ladder (fully boarded).
Bedroom one
UPVC double glazed bay window to front aspect, wood flooring, large range of fitted wardrobes and storage cupboards, double panel radiator, coved ceiling and ceiling rose.
Bedroom two
UPVC double glazed window to rear aspect, fitted wardrobes, wood flooring, double panel radiator, coved ceiling.
Bedroom three
UPVC double glazed window to front aspect, wood flooring, fitted wardrobes and shelving, double panel radiator, coved ceiling.
Bathroom
Modern suite comprising panel enclosed bath with chrome mixer tap and shower attachment, wash hand basin with chrome mixer tap storage cupboard below, low-level push button flush WC, heated chrome towel rail, shaver point, tiled flooring, tiled walls, extractor fan, obscure UPVC double glazed window to rear aspect.
Rear garden - approximately 90ft
Large decking area and footpath to rear, mainly laid to lawn with raised flower beds and shrubs at side, pergola and further decking section, fence enclosed, outside water and power supply, gated side access.
Detached garage
Up/Over door at rear with further hardstanding for off street parking if desired, power and light.
Front
Large block paved driveway providing ample off street parking.
BUYER’S INFORMATION
Under UK law, estate agents are legally required to conduct Anti-Money Laundering (AML) checks on buyers and sellers to comply with regulations. These checks are mandatory, and estate agents can face penalties if they fail to perform them. We use the services of a third party to help conduct these checks thoroughly. As such there is a charge of £36 including vat, per person. Please note, we are unable to issue a memorandum of sale until these checks are complete
Viewing
Please contact us on 020 4537 3222 if you wish to arrange a viewing appointment for this property, or require further information.
Energy Performance Certificate
Click here to view the Energy Efficiency Rating and Environmental Impact Rating for this property.
Disclaimer
Watson Homes - SM6 endeavour to maintain accurate depictions of properties in Virtual Tours, Floor Plans and descriptions, however, these are intended only as a guide and purchasers must satisfy themselves by personal inspection.
NO ONWARD CHAIN !!!!!Watson Homes is pleased to present this charming three-bedroom extended family home located on the desirable Hillview Road in Sutton. This property offers a perfect blend of modern living and comfort, making it an ideal choice for families seeking a welcoming environment.Upon entering, you will find two spacious reception rooms that provide ample space for relaxation and entertaining. The open-plan layout enhances the flow of the home, creating a warm and inviting atmosphere. The property also features a convenient downstairs WC, adding to the practicality of family life.The well-appointed kitchen leads to a delightful rear garden. This outdoor space is perfect for enjoying sunny afternoons or hosting gatherings with friends and family. Additionally, the property offers generous off-street parking for up to four vehicles, ensuring convenience for residents and guests alike. Additional bonus is the very large garage/ workshop at the rear of the garden. Situated in a sought-after residential area, this home is conveniently close to local amenities, green spaces, and excellent transport links. Families will appreciate the proximity to a number of highly regarded schools, including the esteemed Greenshaw High School, making this location particularly appealing for those with children.In summary, this immaculately presented three-bedroom home on Hillview Road is a wonderful opportunity for anyone looking to settle in a vibrant community. With its modern features, ample space, and beautiful surroundings, it is sure to meet the needs of a growing family. We invite you to arrange a viewing and experience all that this lovely property has to offer.
Accommodation
Covered entrance
Obscure double glazed composite front door to..
Spacious entrance hall
Amtico flooring, single panel radiator, obscure UPVC double glazed window to front aspect, wall mounted alarm panel, coved ceiling, wall mounted digital thermostat, under stairs storage cupboard.
Lounge
UPVC double glazed bay window to front aspect, double panel radiator, flame effect fireplace, Amtico flooring, bespoke fitted storage cupboards and display unit, coved ceiling.
Kitchen
Range of fitted gloss wall units with matching cupboards and drawers below, quartz worktops with inlaid induction hob and extractor fan above with double oven/grill at side, space for tall standing fridge/freezer, space and plumbing for washing machine, inlaid ceramic sink, chrome mixer with hose attachment, tempered glass splash back, Amtico flooring, obscure UPVC double glazed windows to side aspect with further windows and double doors to rear aspect, double panel radiator, open plan to..
Family room and dining area
Amtico flooring, modern radiator, serving hatch, coved ceiling, obscure UPVC double glazed windows to side aspect.
Downstairs WC
Consisting of low-level push button flush WC, wash hand basin with chrome taps, tiled flooring, extractor fan.
Stairs to 1st floor landing
UPVC double glazed window to side aspect, coved ceiling, large storage cupboard housing combination boiler , loft access with pulldown ladder (fully boarded).
Bedroom one
UPVC double glazed bay window to front aspect, wood flooring, large range of fitted wardrobes and storage cupboards, double panel radiator, coved ceiling and ceiling rose.
Bedroom two
UPVC double glazed window to rear aspect, fitted wardrobes, wood flooring, double panel radiator, coved ceiling.
Bedroom three
UPVC double glazed window to front aspect, wood flooring, fitted wardrobes and shelving, double panel radiator, coved ceiling.
Bathroom
Modern suite comprising panel enclosed bath with chrome mixer tap and shower attachment, wash hand basin with chrome mixer tap storage cupboard below, low-level push button flush WC, heated chrome towel rail, shaver point, tiled flooring, tiled walls, extractor fan, obscure UPVC double glazed window to rear aspect.
Rear garden - approximately 90ft
Large decking area and footpath to rear, mainly laid to lawn with raised flower beds and shrubs at side, pergola and further decking section, fence enclosed, outside water and power supply, gated side access.
Detached garage
Up/Over door at rear with further hardstanding for off street parking if desired, power and light.
Front
Large block paved driveway providing ample off street parking.
BUYER’S INFORMATION
Under UK law, estate agents are legally required to conduct Anti-Money Laundering (AML) checks on buyers and sellers to comply with regulations. These checks are mandatory, and estate agents can face penalties if they fail to perform them. We use the services of a third party to help conduct these checks thoroughly. As such there is a charge of £36 including vat, per person. Please note, we are unable to issue a memorandum of sale until these checks are complete
Viewing
Please contact us on 020 4537 3222 if you wish to arrange a viewing appointment for this property, or require further information.
Energy Performance Certificate
Click here to view the Energy Efficiency Rating and Environmental Impact Rating for this property.
Disclaimer
Watson Homes - SM6 endeavour to maintain accurate depictions of properties in Virtual Tours, Floor Plans and descriptions, however, these are intended only as a guide and purchasers must satisfy themselves by personal inspection.
Share
Request aValuation
Thinking of selling or letting your property? Request a free property valuation

