Details
Yarbridge Close, Sutton, SM2
Guide price £500,000
Description
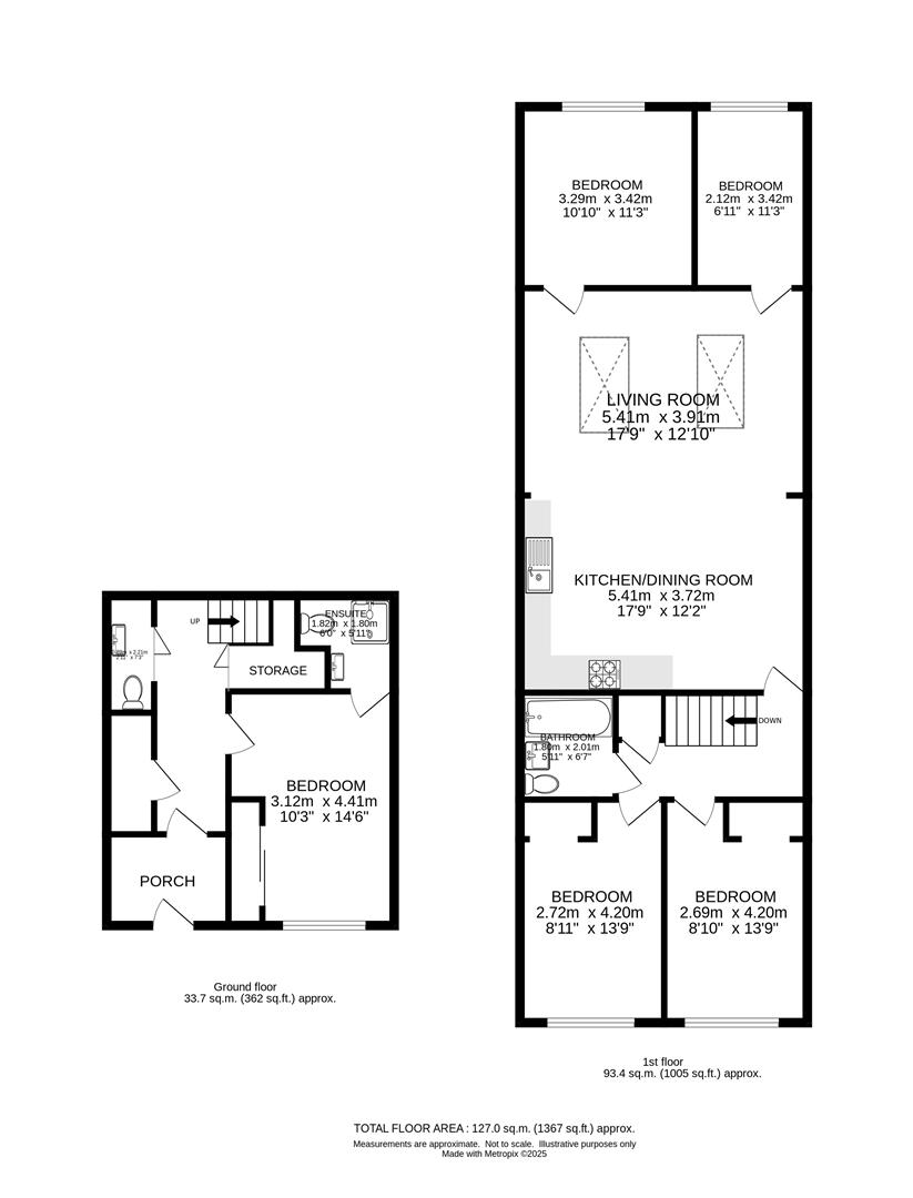
Watson Homes are delighted to offer this unique and deceptively spacious five bedroom end of terrace family home. The property offers a wealth of accommodation, benefitting from modern open plan living, a downstairs WC, an en-suite shower room and a courtyard garden at the front.Forget compromising on location or parking restrictions, as this property ticks all the boxes. With its fantastic location, you'll find yourself just a short distance away from Sutton's amenities, making daily life a breeze and impressing your family and friends with the convenience of your new home. Don't miss out on the opportunity to own this very desirable property at Yarbridge Close.
Accommodation
Obscure UPVC double glazed front door to..
Large entrance porch
Tiled effect flooring, obscure UPVC double glazed windows to front aspect, composite front door to..
Spacious entrance hall
Double panel radiator, two large storage cupboards (one housing the boiler, gas meter and water tank, and one housing the electric meter).
Bedroom five
UPVC double glazed window to front aspect, fitted wardrobes, double panel radiator.
Ensuite shower room
Consisting of tiled cubicle with thermostatic shower and hand attachment, wash hand basin with chrome mixer tap and storage cupboards below, low-level push button flush WC, heated chrome towel rail, extractor fan, tiled walls, tiled flooring.
Downstairs WC
Consisting of low-level WC and wash hand basin with chrome mixer tap.
Stairs to 1st floor landing
Large storage cupboard with fitted shelving, wall mounted digital thermostat.
Open plan lounge/diner/kitchen
Kitchen area
Range of fitted wall units with matching cupboards and drawers below, granite effect roll top work surfaces with inlaid stainless steel sink and chrome mixer tap, space and plumbing for washing machine, tumble dryer and dishwasher, space for cooker with extractor fan above, space for tall standing fridge/freezer, tiled splashback, wood flooring.
Lounge area
Two feature skylights, double panel radiator, wood flooring.
Bedroom one
UPVC double glazed windows to front aspect, double panel radiator, storage recess with fitted shelving.
Bedroom two
UPVC double glazed windows to front aspect, double panel radiator, storage recess with clothes rail.
Bedroom three
Obscure UPVC double glazed windows to rear aspect, double panel radiator, fitted wardrobe with sliding doors.
Bedroom four
Obscure UPVC double glazed window to rear aspect, double panel radiator.
Bathroom
Modern three piece suite comprising panel enclosed bath with chrome mixer tap and thermostatic shower with hand attachment, wash hand basin with chrome mixer tap and storage cupboard below, low-level push button flush WC, heated chrome towel rail, shaver point, tiled flooring, tiled walls, extractor fan.
Outside
Front patio garden, well kept communal grounds, and residents parking.
BUYER’S INFORMATION
Under UK law, estate agents are legally required to conduct Anti-Money Laundering (AML) checks on buyers and sellers to comply with regulations. These checks are mandatory, and estate agents can face penalties if they fail to perform them. We use the services of a third party to help conduct these checks thoroughly. As such there is a charge of £36 including vat, per person. Please note, we are unable to issue a memorandum of sale until these checks are complete.
Viewing
Please contact us on 020 4537 3222 if you wish to arrange a viewing appointment for this property, or require further information.
Energy Performance Certificate
Click here to view the Energy Efficiency Rating and Environmental Impact Rating for this property.
Disclaimer
Watson Homes - SM6 endeavour to maintain accurate depictions of properties in Virtual Tours, Floor Plans and descriptions, however, these are intended only as a guide and purchasers must satisfy themselves by personal inspection.
Watson Homes are delighted to offer this unique and deceptively spacious five bedroom end of terrace family home. The property offers a wealth of accommodation, benefitting from modern open plan living, a downstairs WC, an en-suite shower room and a courtyard garden at the front.Forget compromising on location or parking restrictions, as this property ticks all the boxes. With its fantastic location, you'll find yourself just a short distance away from Sutton's amenities, making daily life a breeze and impressing your family and friends with the convenience of your new home. Don't miss out on the opportunity to own this very desirable property at Yarbridge Close.
Accommodation
Obscure UPVC double glazed front door to..
Large entrance porch
Tiled effect flooring, obscure UPVC double glazed windows to front aspect, composite front door to..
Spacious entrance hall
Double panel radiator, two large storage cupboards (one housing the boiler, gas meter and water tank, and one housing the electric meter).
Bedroom five
UPVC double glazed window to front aspect, fitted wardrobes, double panel radiator.
Ensuite shower room
Consisting of tiled cubicle with thermostatic shower and hand attachment, wash hand basin with chrome mixer tap and storage cupboards below, low-level push button flush WC, heated chrome towel rail, extractor fan, tiled walls, tiled flooring.
Downstairs WC
Consisting of low-level WC and wash hand basin with chrome mixer tap.
Stairs to 1st floor landing
Large storage cupboard with fitted shelving, wall mounted digital thermostat.
Open plan lounge/diner/kitchen
Kitchen area
Range of fitted wall units with matching cupboards and drawers below, granite effect roll top work surfaces with inlaid stainless steel sink and chrome mixer tap, space and plumbing for washing machine, tumble dryer and dishwasher, space for cooker with extractor fan above, space for tall standing fridge/freezer, tiled splashback, wood flooring.
Lounge area
Two feature skylights, double panel radiator, wood flooring.
Bedroom one
UPVC double glazed windows to front aspect, double panel radiator, storage recess with fitted shelving.
Bedroom two
UPVC double glazed windows to front aspect, double panel radiator, storage recess with clothes rail.
Bedroom three
Obscure UPVC double glazed windows to rear aspect, double panel radiator, fitted wardrobe with sliding doors.
Bedroom four
Obscure UPVC double glazed window to rear aspect, double panel radiator.
Bathroom
Modern three piece suite comprising panel enclosed bath with chrome mixer tap and thermostatic shower with hand attachment, wash hand basin with chrome mixer tap and storage cupboard below, low-level push button flush WC, heated chrome towel rail, shaver point, tiled flooring, tiled walls, extractor fan.
Outside
Front patio garden, well kept communal grounds, and residents parking.
BUYER’S INFORMATION
Under UK law, estate agents are legally required to conduct Anti-Money Laundering (AML) checks on buyers and sellers to comply with regulations. These checks are mandatory, and estate agents can face penalties if they fail to perform them. We use the services of a third party to help conduct these checks thoroughly. As such there is a charge of £36 including vat, per person. Please note, we are unable to issue a memorandum of sale until these checks are complete.
Viewing
Please contact us on 020 4537 3222 if you wish to arrange a viewing appointment for this property, or require further information.
Energy Performance Certificate
Click here to view the Energy Efficiency Rating and Environmental Impact Rating for this property.
Disclaimer
Watson Homes - SM6 endeavour to maintain accurate depictions of properties in Virtual Tours, Floor Plans and descriptions, however, these are intended only as a guide and purchasers must satisfy themselves by personal inspection.
Share
Request aValuation
Thinking of selling or letting your property? Request a free property valuation

