Details
Chapel Road, Tadworth, KT20
Offers over £525,000
Description
Watson Homes are delighted to offer this charming three bedroom extended cottage nestled away in a sought after location in Tadworth. The property benefits from modern open plan living, a pretty wrap-around garden, a conservatory and a modern four piece bathroom suite. Conveniently located just a short drive from the nearest village, this home offers peace and privacy, while still being within reach of local shops, schools, and amenities, and perfect country walks.
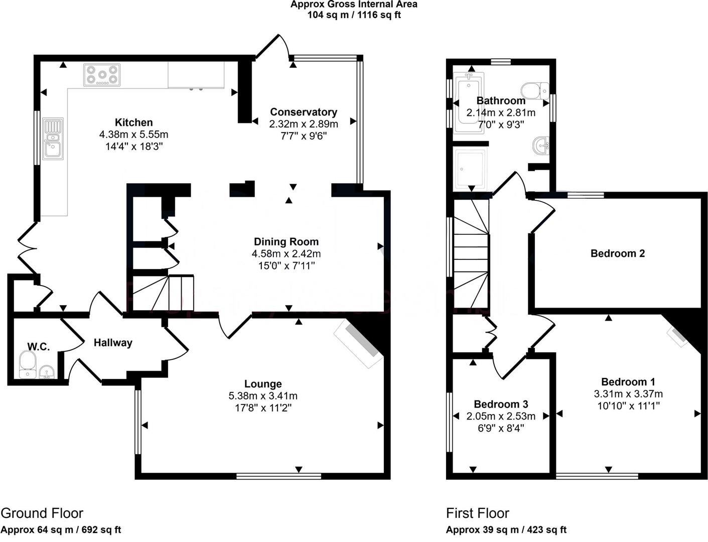
Accommodation
Double glazed leaded light wooden front door to..
Entrance hall
Oak flooring, featured glazed window to front aspect, wall mounted alarm panel.
Lounge
UPVC double glazed windows to front and side aspects, two single panel radiators, feature cast iron fireplace, wall mounted thermostat.
Dining area
Oak flooring, breakfast bar area, open plan to the conservatory with UPVC double windows to side and rear aspects and door leading to garden, double panel radiator, under stairs storage cupboards.
Kitchen/breakfast room
Range of fitted wall units with matching cupboards and drawers below, wooden worktops with inlaid ceramic sink and chrome mixer tap, inlaid gas hob with oven/grill at side, space and plumbing for washing machine and dishwasher, space for tall standing fridge/freezer, double panel radiator, storage cupboard, feature glazed window to rear aspect with window at side and patio doors leading to garden, oak flooring.
Downstairs WC
Consisting of low-level flush WC, wash hand basin with chrome taps, glazed window to front aspect, oak flooring.
Stairs to 1st floor landing
UPVC double glazed window to side aspect, loft access, picture rail, fitted storage cupboard.
Bedroom one
UPVC double glazed window to front aspect, open fireplace, single panel radiator, picture rail.
Bedroom two
UPVC double glazed window to rear aspect, single panel radiator, picture rail.
Bedroom three
UPVC double glazed window to side aspect, single panel radiator, picture rail.
Bathroom
Modern four-piece suite consisting of tiled cubicle with thermostatic shower, panel enclosed bath with chrome mixer tap and shower attachment, wash hand basin with chrome mixer tap and storage cupboards below, low-level pushbutton flush WC, heated chrome towel rail, Amtico flooring, part tiled walls, UPVC double glazed windows to side and rear aspects, fitted storage cupboard.
Rear and side wrap around garden (Approximately 75ft)
Mainly laid to lawn with footpath leading to patio section and raised flower beds bordering, fence enclosed, garden shed, outside power and water supply, gated side access.
Front
Pretty lawn areas and abundance of plants and flowers.
BUYER’S INFORMATION
Under UK law, estate agents are legally required to conduct Anti-Money Laundering (AML) checks on buyers and sellers to comply with regulations. These checks are mandatory, and estate agents can face penalties if they fail to perform them. We use the services of a third party to help conduct these checks thoroughly. As such there is a charge of £36 including vat, per person. Please note, we are unable to issue a memorandum of sale until these checks are complete.
Viewing
Please contact us on 020 3196 1686 if you wish to arrange a viewing appointment for this property, or require further information.
Disclaimer
Watson Homes - SM6 endeavour to maintain accurate depictions of properties in Virtual Tours, Floor Plans and descriptions, however, these are intended only as a guide and purchasers must satisfy themselves by personal inspection.
Watson Homes are delighted to offer this charming three bedroom extended cottage nestled away in a sought after location in Tadworth. The property benefits from modern open plan living, a pretty wrap-around garden, a conservatory and a modern four piece bathroom suite. Conveniently located just a short drive from the nearest village, this home offers peace and privacy, while still being within reach of local shops, schools, and amenities, and perfect country walks.
Accommodation
Double glazed leaded light wooden front door to..
Entrance hall
Oak flooring, featured glazed window to front aspect, wall mounted alarm panel.
Lounge
UPVC double glazed windows to front and side aspects, two single panel radiators, feature cast iron fireplace, wall mounted thermostat.
Dining area
Oak flooring, breakfast bar area, open plan to the conservatory with UPVC double windows to side and rear aspects and door leading to garden, double panel radiator, under stairs storage cupboards.
Kitchen/breakfast room
Range of fitted wall units with matching cupboards and drawers below, wooden worktops with inlaid ceramic sink and chrome mixer tap, inlaid gas hob with oven/grill at side, space and plumbing for washing machine and dishwasher, space for tall standing fridge/freezer, double panel radiator, storage cupboard, feature glazed window to rear aspect with window at side and patio doors leading to garden, oak flooring.
Downstairs WC
Consisting of low-level flush WC, wash hand basin with chrome taps, glazed window to front aspect, oak flooring.
Stairs to 1st floor landing
UPVC double glazed window to side aspect, loft access, picture rail, fitted storage cupboard.
Bedroom one
UPVC double glazed window to front aspect, open fireplace, single panel radiator, picture rail.
Bedroom two
UPVC double glazed window to rear aspect, single panel radiator, picture rail.
Bedroom three
UPVC double glazed window to side aspect, single panel radiator, picture rail.
Bathroom
Modern four-piece suite consisting of tiled cubicle with thermostatic shower, panel enclosed bath with chrome mixer tap and shower attachment, wash hand basin with chrome mixer tap and storage cupboards below, low-level pushbutton flush WC, heated chrome towel rail, Amtico flooring, part tiled walls, UPVC double glazed windows to side and rear aspects, fitted storage cupboard.
Rear and side wrap around garden (Approximately 75ft)
Mainly laid to lawn with footpath leading to patio section and raised flower beds bordering, fence enclosed, garden shed, outside power and water supply, gated side access.
Front
Pretty lawn areas and abundance of plants and flowers.
BUYER’S INFORMATION
Under UK law, estate agents are legally required to conduct Anti-Money Laundering (AML) checks on buyers and sellers to comply with regulations. These checks are mandatory, and estate agents can face penalties if they fail to perform them. We use the services of a third party to help conduct these checks thoroughly. As such there is a charge of £36 including vat, per person. Please note, we are unable to issue a memorandum of sale until these checks are complete.
Viewing
Please contact us on 020 3196 1686 if you wish to arrange a viewing appointment for this property, or require further information.
Disclaimer
Watson Homes - SM6 endeavour to maintain accurate depictions of properties in Virtual Tours, Floor Plans and descriptions, however, these are intended only as a guide and purchasers must satisfy themselves by personal inspection.
Share
Request aValuation
Thinking of selling or letting your property? Request a free property valuation

