Details
Woodmansterne Lane, Wallington, SM6
Guide price £925,000
Description
Nestled on Woodmansterne Lane in South Wallington, this delightful three-bedroom detached family home is a true gem. Spanning an impressive 1,814 square feet, the property is set on a generous plot of approximately one-third of an acre, providing a serene and semi-rural atmosphere. Surrounded by charming nurseries, small holdings, and picturesque lavender fields, this residence offers a tranquil retreat from the hustle and bustle of city life.Upon entering, you will be greeted by two spacious reception rooms that create a warm and inviting environment, perfect for family gatherings or entertaining guests. The heart of the home is a beautifully designed open-plan kitchen and dining area, ideal for both casual meals and formal dining. The stunning gardens that envelop the property enhance its appeal, providing a lovely outdoor space for relaxation and play.With ample off-street parking for up to six vehicles, convenience is at your fingertips. Additionally, there is potential for extension, subject to planning permission, allowing you to tailor the home to your family's needs.Families will appreciate the proximity to outstanding local grammar schools, with Wallington High School for Girls located just round the corner. Wilson’s Grammar School and Wallington County Grammar are also within easy reach, making this location ideal for educational pursuits. Transport links are excellent, with local bus routes and the nearby Wallington and Purley mainline train stations offering straightforward access to London and Gatwick. Furthermore, residents can enjoy the nearby parks and the vibrant amenities of Wallington High Street, which boasts a variety of shops, cafés, and supermarkets, all within walking distance.This charming home presents a wonderful opportunity for families seeking a blend of comfort, convenience, and a touch of countryside charm.
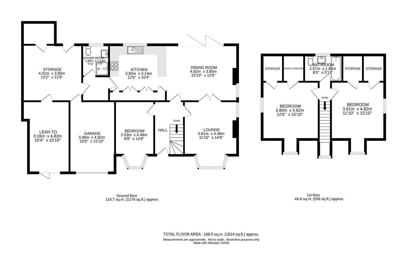
Accommodation
Sheltered entrance
Obscure double glazed composite front door to..
Entrance hall
Obscure double glazed window to front aspect, modern radiator, wall mounted thermostat, under stairs storage cupboard, karndean flooring.
Lounge
UPVC double glazed leaded light bay window to front aspect, modern radiators, feature stained glass window to side, feature cast iron fireplace, karndean flooring.
Open Plan kitchen/diner/family area
Modern range of fitted wall units with matching cupboards and drawers below, granite worktops with inlaid butler sink and chrome mixer tap with hose attachment, inlaid electric hob with extractor fan above and eye level double oven/grill at side, integrated dishwasher, two integrated fridge freezers, larder cupboard with double electric socket, karndean flooring, UPVC double glazed leaded light window to rear aspect, double glazed bi folding doors to rear patio, modern radiators, open fireplace with brick surround and wooden mantle piece, feature stained glass window to side aspect.
Utility area and store room
Access to large storage area with shelving, doors leading to garage, lean-to and rear.
Downstairs shower room
Consisting of tiled cubicle with a thermostatic shower, wash hand basin with chrome mixer tap and storage cupboards below, low-level flush WC, heated towel rail, shaver point, extractor fan, tiled flooring, tiled walls, UPVC double glazed leaded light window to rear aspect.
Bedroom three
UPVC double glazed leaded light bay window to front aspect, modern radiator, stripped floorboards.
Stairs to 1st floor landing
Loft access with pull down ladder, UPVC double glazed leaded light window to front aspect.
Main bedroom
UPVC double glazed leaded light bay window to front aspect and window at side, modern radiator, built-in storage with wardrobe space and access to eaves.
Bedroom two
UPVC double glazed leaded light bay window to front aspect and window at side, modern radiator, built- in storage with wardrobe space and access to eaves.
Bathroom
Comprising freestanding clawfoot roll top bathtub with Victorian style chrome mixer tap and shower attachment, pedestal wash hand basin with chrome mixer tap, low-level push button flush WC, heated chrome towel rail, part travertine tiled walls, extractor fan, oak flooring, shaver point, UPVC double glazed leaded light window to rear aspect.
Rear garden - Westerley aspect
One third of an acre plot
Large paved patio area leading to lawn section with an abundance of flowers and plants bordering, garden sheds, greenhouse, outside tap, gated side access, fence enclosed, access to Secret Garden with further lawn section.
Front
Large gravel driveway with spacious lawn area at side with an abundance of plants and flowers with hedge border.
Viewing
Please contact us on 020 4537 3222 if you wish to arrange a viewing appointment for this property, or require further information.
Energy Performance Certificate
Click here to view the Energy Efficiency Rating and Environmental Impact Rating for this property.
Disclaimer
Watson Homes - SM6 endeavour to maintain accurate depictions of properties in Virtual Tours, Floor Plans and descriptions, however, these are intended only as a guide and purchasers must satisfy themselves by personal inspection.
Nestled on Woodmansterne Lane in South Wallington, this delightful three-bedroom detached family home is a true gem. Spanning an impressive 1,814 square feet, the property is set on a generous plot of approximately one-third of an acre, providing a serene and semi-rural atmosphere. Surrounded by charming nurseries, small holdings, and picturesque lavender fields, this residence offers a tranquil retreat from the hustle and bustle of city life.Upon entering, you will be greeted by two spacious reception rooms that create a warm and inviting environment, perfect for family gatherings or entertaining guests. The heart of the home is a beautifully designed open-plan kitchen and dining area, ideal for both casual meals and formal dining. The stunning gardens that envelop the property enhance its appeal, providing a lovely outdoor space for relaxation and play.With ample off-street parking for up to six vehicles, convenience is at your fingertips. Additionally, there is potential for extension, subject to planning permission, allowing you to tailor the home to your family's needs.Families will appreciate the proximity to outstanding local grammar schools, with Wallington High School for Girls located just round the corner. Wilson’s Grammar School and Wallington County Grammar are also within easy reach, making this location ideal for educational pursuits. Transport links are excellent, with local bus routes and the nearby Wallington and Purley mainline train stations offering straightforward access to London and Gatwick. Furthermore, residents can enjoy the nearby parks and the vibrant amenities of Wallington High Street, which boasts a variety of shops, cafés, and supermarkets, all within walking distance.This charming home presents a wonderful opportunity for families seeking a blend of comfort, convenience, and a touch of countryside charm.
Accommodation
Sheltered entrance
Obscure double glazed composite front door to..
Entrance hall
Obscure double glazed window to front aspect, modern radiator, wall mounted thermostat, under stairs storage cupboard, karndean flooring.
Lounge
UPVC double glazed leaded light bay window to front aspect, modern radiators, feature stained glass window to side, feature cast iron fireplace, karndean flooring.
Open Plan kitchen/diner/family area
Modern range of fitted wall units with matching cupboards and drawers below, granite worktops with inlaid butler sink and chrome mixer tap with hose attachment, inlaid electric hob with extractor fan above and eye level double oven/grill at side, integrated dishwasher, two integrated fridge freezers, larder cupboard with double electric socket, karndean flooring, UPVC double glazed leaded light window to rear aspect, double glazed bi folding doors to rear patio, modern radiators, open fireplace with brick surround and wooden mantle piece, feature stained glass window to side aspect.
Utility area and store room
Access to large storage area with shelving, doors leading to garage, lean-to and rear.
Downstairs shower room
Consisting of tiled cubicle with a thermostatic shower, wash hand basin with chrome mixer tap and storage cupboards below, low-level flush WC, heated towel rail, shaver point, extractor fan, tiled flooring, tiled walls, UPVC double glazed leaded light window to rear aspect.
Bedroom three
UPVC double glazed leaded light bay window to front aspect, modern radiator, stripped floorboards.
Stairs to 1st floor landing
Loft access with pull down ladder, UPVC double glazed leaded light window to front aspect.
Main bedroom
UPVC double glazed leaded light bay window to front aspect and window at side, modern radiator, built-in storage with wardrobe space and access to eaves.
Bedroom two
UPVC double glazed leaded light bay window to front aspect and window at side, modern radiator, built- in storage with wardrobe space and access to eaves.
Bathroom
Comprising freestanding clawfoot roll top bathtub with Victorian style chrome mixer tap and shower attachment, pedestal wash hand basin with chrome mixer tap, low-level push button flush WC, heated chrome towel rail, part travertine tiled walls, extractor fan, oak flooring, shaver point, UPVC double glazed leaded light window to rear aspect.
Rear garden - Westerley aspect
One third of an acre plot
Large paved patio area leading to lawn section with an abundance of flowers and plants bordering, garden sheds, greenhouse, outside tap, gated side access, fence enclosed, access to Secret Garden with further lawn section.
Front
Large gravel driveway with spacious lawn area at side with an abundance of plants and flowers with hedge border.
Viewing
Please contact us on 020 4537 3222 if you wish to arrange a viewing appointment for this property, or require further information.
Energy Performance Certificate
Click here to view the Energy Efficiency Rating and Environmental Impact Rating for this property.
Disclaimer
Watson Homes - SM6 endeavour to maintain accurate depictions of properties in Virtual Tours, Floor Plans and descriptions, however, these are intended only as a guide and purchasers must satisfy themselves by personal inspection.
Share
Request aValuation
Thinking of selling or letting your property? Request a free property valuation

